Other For Sale Mansfield
PROPERTY ID: 85608
PROPERTY TYPE
Other
STATUS
Under Offer
SIZE
378,972 sq.ft
Key Features
Property Details
Bleak Hills Lane Fishery Is An Established Coarse Fishery With Planning Permission For A Detached Four Bedroom Dwelling Overlooking The Lakes. The Fishery Comprises Our Attractive Pools, And Existing Manager's Accommodation Set Within 8.7 Acres (3.5 Ha).
Location
The Site Is Situated Next To The Oakham Nature Reserve, Approximately 1 Mile South Of Mansfield, Close The A60 And A38 And Approximately 5.5 Miles From Junction 28 Of The M1.
The Fishery
The Fishery Comprises Four Spring-fed Pools Situated Adjacent To The Cauldwell Brook, With A Total Water Area Of 3.87 Acres (1.56 Ha).
Railway Pond - Extending To 1.03 Acres, 12 Pegs, With Average Depths Of Up To 4.5ft. Stocked With Perch, Roach, Bream, Tench, Hybrids, Pike And Carp Up To 15lbs.
Polo Pond - Extending To 0.9 Acres, 15 Pegs, With Average Depths Of 5ft. Stocked With Carp Up To 21lbs, Perch, Roach, Bream, Tench, Barbel, Hybrids And Crucian Carp.
Barbel Pond - Extending To 1.08 Acres, 19 Pegs, With Average Depths Of 5ft. Stocked With Carp Up To 23lbs, Perch, Roach, Bream, Tench, Barbel, Hybrids And Crucian Carp.
Pond No. 4 - Extending To 0.86 Acres, 15 Pegs, With Depths Between 4-7ft. Stocked With Carp Up To 18lbs, Perch, Roach Bream, Tench, Barbel, Chub, Hybrids And Gudgeon. Pond 4 Was Originally A Stock Pond And Has Two Areas Of Water Separated By A Central Bar.
The Fishery Has Benefitted From A Regular Stocking Programme, The Most Recent Stockings In 2018 And 2020.
Planning Permission
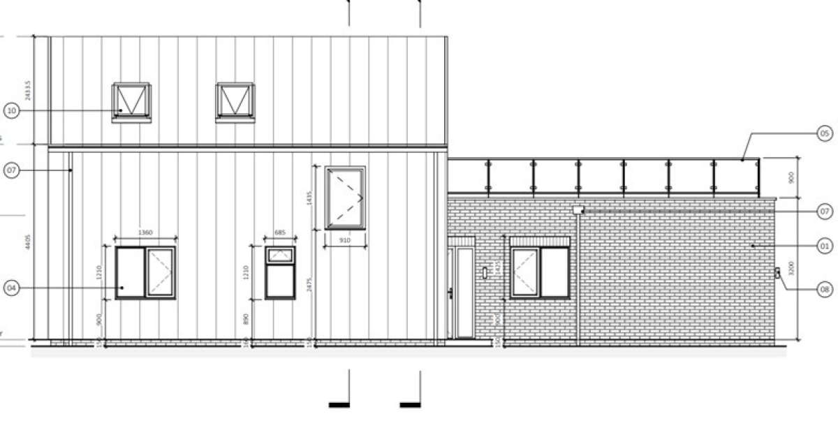
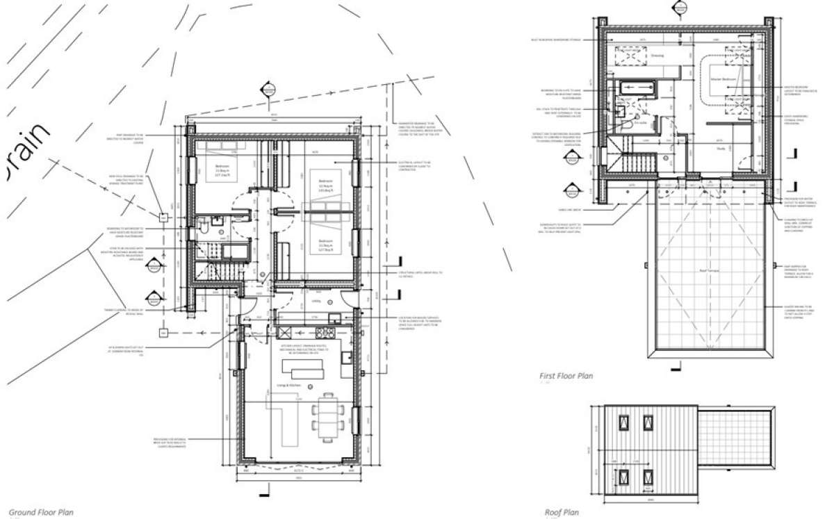
The Property Benefits From Planning Ref: 2024/0324/ful to Replace The Existing Residential Lodge With A Four Bedroom, Two Storey New Build Dwelling Situated Overlooking The Lakes. Full Plans And Application Details Available Upon Request.
The Lodge
A Two Bedroom Mobile Home Extending To 6 X 12m (20 X 40ft) Comprising The Following Accommodation:
Open Plan Kitchen/diner
Bedroom 1 - En Suite
Bedroom 2
Bathroom
Lean-to (boot Room)
Buildings
A Storage Container Located Next To The Mobile Home. Angler's Toilet And Store.
Storage Building
Income
The Fishery Has Previously Been Operated On A Combination Of A Day Ticket Basis. The Fishery Is Currently Operated On A Membership Basis. Income Figures Available Upon Request.
Services
The Site Has Mains Electricity And Water. Drainage To A Waste Treatment System.
Lotting
The Property Is Available As A Whole Or In Two Lots:
Lot 1-bleak Hills Lane Fishery (7.6 Acres)
Lot 2-railway Pond (1.17 Acres)
Outgoings
Owners' Residence Council Tax Band A - Rates Payable 2021/2022 - £1,587.99
Business Rates - £nil
Website & Social Media
Facebook: Bleak Hills Lane Fishery, Mansfield









































