Other
Other For Sale Birmingham
PROPERTY ID: 143025
PROPERTY TYPE
Other
STATUS
Available
SIZE
33,432 sq.ft
Key Features
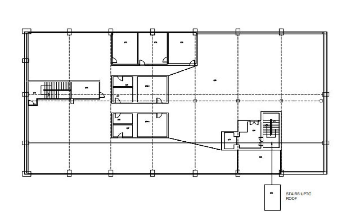
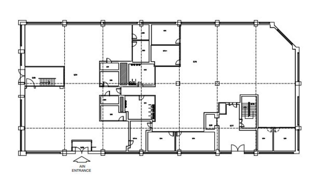
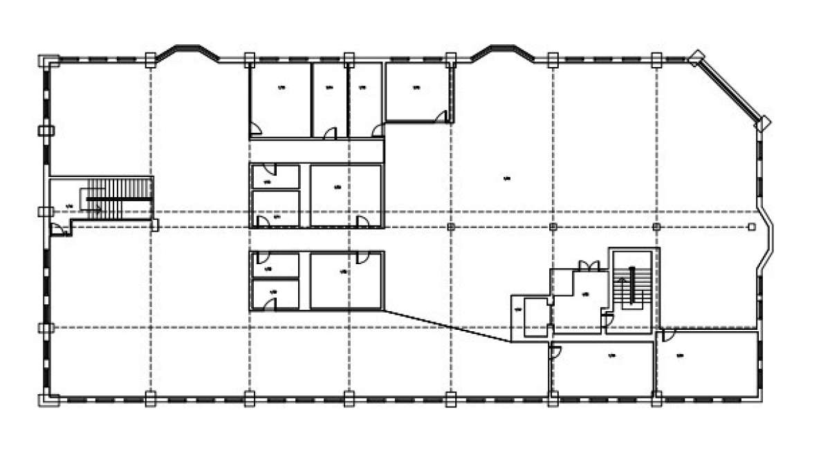
Office building extending to 33,432.sq.ft GIA.
Redevelopment opportunity STP.
Prominently located site along the A34 New Town Row.
Site area of 1 acre. Circa. 85 car parking spaces.
To be sold with vacant possession.
Informal tender bid deadline 2pm on 10th October 2025.
Offers invited on both conditional and unconditional basis.
Office to resi permitted development opportunity.
Property Details
New Aston House Is A Rectangular Shaped Modern Office Building, Constructed Over Basement, Ground And Two Upper Floors Extending To 33,432 Sq.ft Gia And Sitting On A 1-acre Site. The Property Has Largely Regular Shaped Floor Plates And Benefits From Two Stair Cores At Either End Of The Building, A Lift And Wc's. To The Rear Of The Property Is A Large Surface Car Park Featuring Circa. 85 Spaces.
Available Together Or Separately With The Adjacent Former Newtown Baths And Leisure Centre. Total Combined Area C.2 Acres.
About the Agent
LSH-Birmingham
See Agent's Other PropertiesOther Unit
POA
New Aston House,Alma Street, Birmingham, B19 2SB
Other -
Available
33,432 sq ft
3,106 sqm
Show phone number














































