Retail/Shop
Retail/Shop To Let Dundee
PROPERTY ID: 141633
PROPERTY TYPE
Retail/Shop
STATUS
Available
SIZE
25,251 sq.ft
Property Details
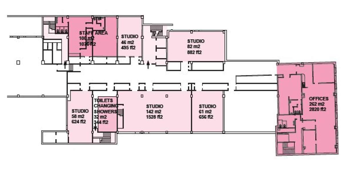
Indicative Proposals Have Been Drawn Up For The Current Mall Office Space To Be Re-purposed Into A Leisure Or Gym Use.
This Would Be Subject To Planning But Indicative Floorplans And Sizes Are Provided.
About the Agent
LSH-Edinburgh
See Agent's Other PropertiesRetail Unit
POA
Gym/Leisure Proposal,80 Nethergate, Dundee, DD1 4ER
Retail/Shop -
Available
25,251 sq ft
2,346 sqm
Show phone number




















































