Office
Office To Let Perth
PROPERTY ID: 149986
PROPERTY TYPE
Office
STATUS
Under Offer
SIZE
400-1,413 sq.ft
Key Features
Offices from 37 sq m
Excellent parking provision
Great accessibility and close to city centre
Quality working environment
Flexible lease arrangements
May qualify for 100% rates relief
Property Details
Perth is a city in central Scotland, on the banks of the River Tay. It is the administrative centre of Perth and Kinross Council area and the historic county town of Perthshire. As of mid- 2020 the estimated population was 47,350 persons.
The subjects occupy an elevated position at the corner of Bowerswell Road and Dundee Road overlooking Perth city and the River Tay.
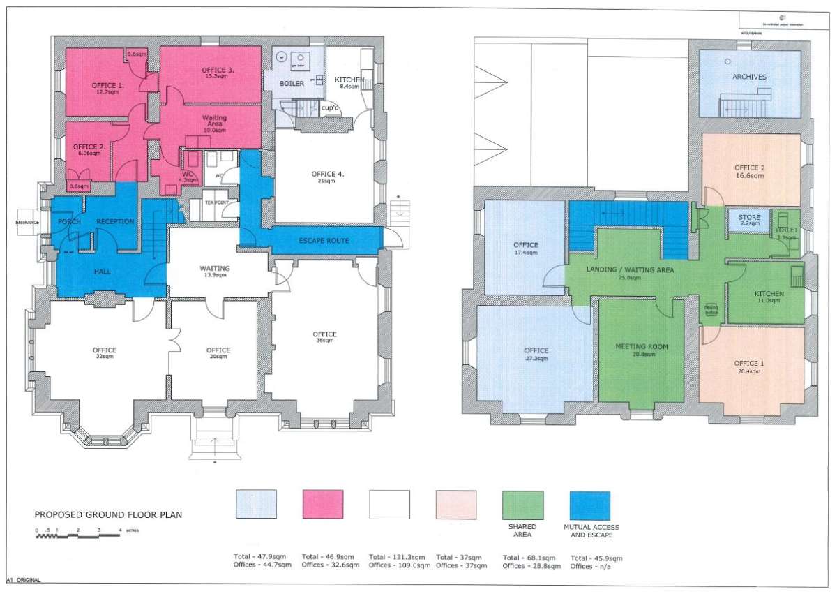
Traditional Villa Set In Substantial Grounds With Abundant Carparking.
Accommodation Over Ground And First Floors Available On Flexible/attractive Terms With Potential Splits As Shown Below.
Shared Toilet, Kitchen Facilities And Meeting Room.
Accommodation Over Ground And First Floors Available On Flexible/attractive Terms With Potential Splits As Shown Below.
Shared Toilet, Kitchen Facilities And Meeting Room.
About the Agent
Graham & Sibbald-Perth
See Agent's Other PropertiesOffice Unit
Starting From £5,500 / pa
£458 / month
2 Dundee Road, Perth, PH2 7DW
Office -
Under Offer
400-1,413 sq ft
37-131 sqm
Show phone number



































































































