Office
Office To Let Perth
PROPERTY ID: 149973
PROPERTY TYPE
Office
STATUS
Available
SIZE
604-1,272 sq.ft
Key Features
City Centre Position
Ground Floor - Available in Part or Whole
May Qualify for 100% Rates Relief
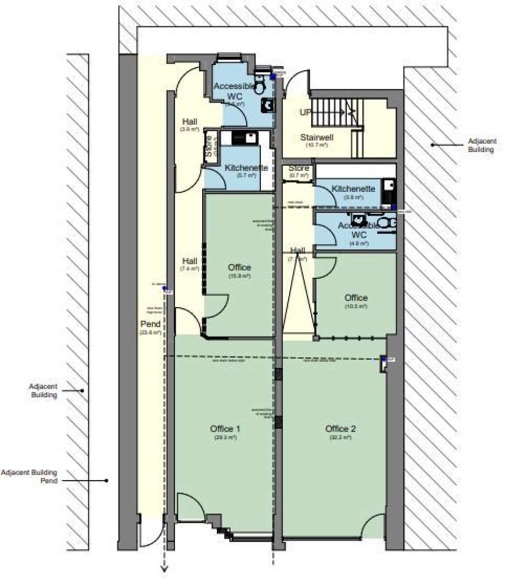
From 604 SQ.FT to 1,272 SQ.FT
A Short Distance From Perth Museum
Ideal For a Varity of Class 1A Operators
Property Details
The city of Perth has a resident population of approximately
46,000 persons, with the population of the surrounding
catchment area estimated to be in the region of 130,000. Perth is
situated approximately 20 miles west of Dundee, 40 miles north
of Edinburgh and 60 miles north east of Glasgow, lying at the hub
of Central Scotland's road network.
The subjects are situated on the north side of South Street
between its junction with King Edward Street and St John's street,
which is a busy traffic thoroughfare.
Perth Museum, The St John's Shopping Centre, Tesco, Greggs and
William Hill are all located within walking distance, making South
Street a popular mixed-use area.
The Subjects Comprise A Ground Floor Office/commercial Unit
Contained Within A 2-storey Building Of Brick Construction Held
Under A Pitched And Slated Roof.
Accommodation Can Be Made Available In Part Or Whole At
Ground Floor Level With The Landlord Proposing To Sub-divide And
Create Small, Bright And Attractive Commercial Units.
The Subjects Would Suit A Variety Of Class 1a Uses.
Contained Within A 2-storey Building Of Brick Construction Held
Under A Pitched And Slated Roof.
Accommodation Can Be Made Available In Part Or Whole At
Ground Floor Level With The Landlord Proposing To Sub-divide And
Create Small, Bright And Attractive Commercial Units.
The Subjects Would Suit A Variety Of Class 1a Uses.
About the Agent
Graham & Sibbald-Perth
See Agent's Other PropertiesOffice Unit
POA
65-69 South Street, Perth, PH2 8PD
Office -
Available
604-1,272 sq ft
56-118 sqm
Show phone number



































































































