







Land
Land To Let Tavistock
PROPERTY ID: 146523
PROPERTY TYPE
Land
STATUS
Available
SIZE
3.8 ACRES
Key Features
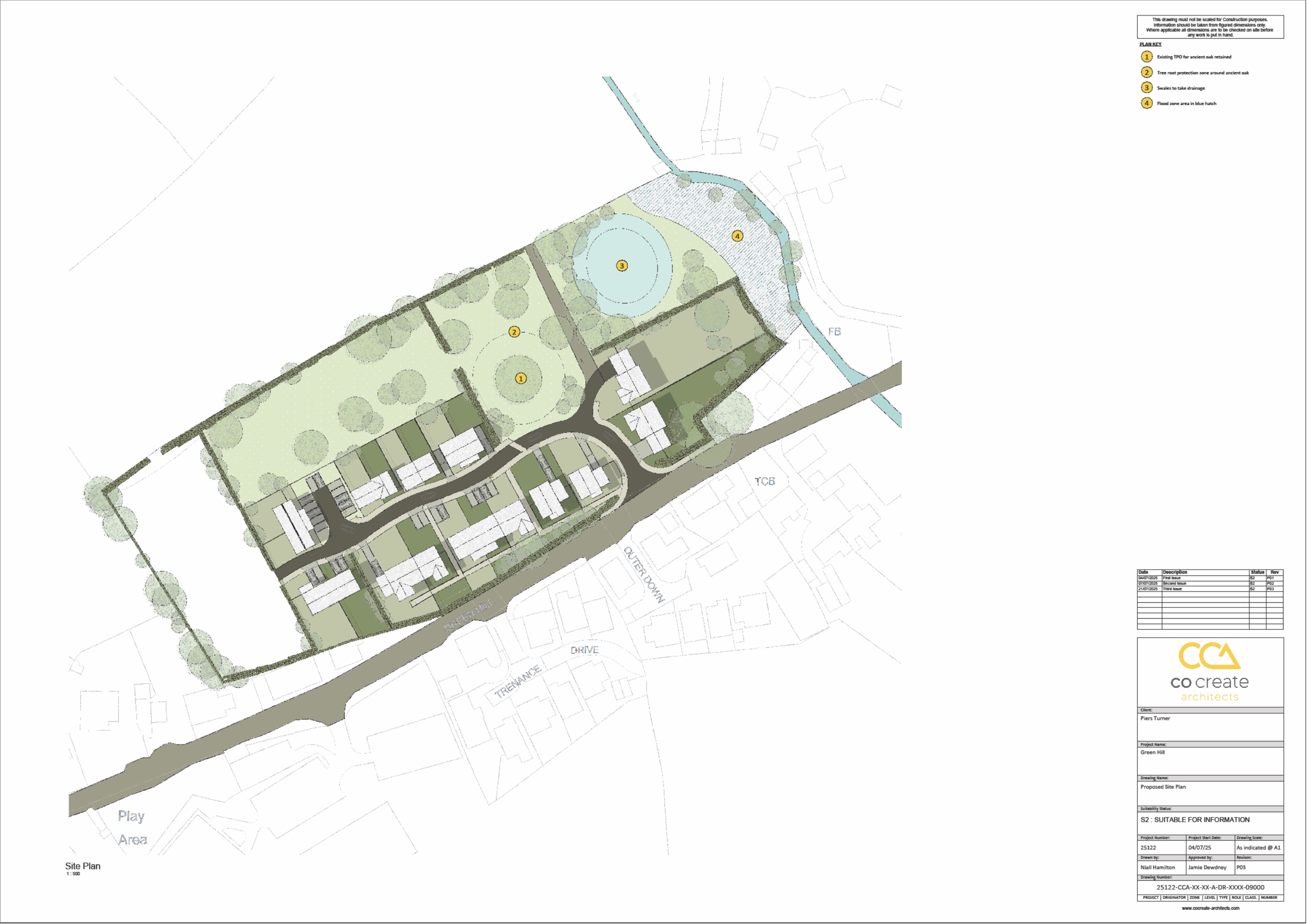
Planning permission for 15 dwellings plus 4 self build plots
Edge of village location
Easy walking distance of the popular Blacksmiths Arms
Gentle sloping site
Mix of open market and affordable dwellings
Property Details
<p>This freehold parcel of approximately 1.539 hectares (c. 3.803 acres) of sloping greenfield pasture lies on the northern edge of Lamerton village. The site has planning permission for a mixed development of 15 open market and affordable dwellings, together with four self build plots. The 15 plots are being offered for sale, following which the four self build plots will be sold.</p>
<p>The site benefits from an outline planning consent (Ref 0107/22/OPA), permitting up to 19 residential dwellings, with all matters reserved except for access (which has been granted in principle). The property is offered with vacant possession and full freehold title.</p>
About the Agent
Ward Chowen Commercial
See Agent's Other PropertiesLamerton Tavistock. 3.8 acres of Development land Green field site. Popular village location. PP granted for 15 dwellings (including affordables).
POA
Land at Green Hill, Tavistock, PL19 8QP
Land -
Available
3.8 ACRES
Show phone number