







Land
Land For Sale Inverness
PROPERTY ID: 144381
PROPERTY TYPE
Land
STATUS
Available
SIZE
0 sq.ft
Key Features
Over 32 acres available
Ideal for Industrial, office or dedicated yard space
Located within the Cromarty Firth Green Freeport
Property Details
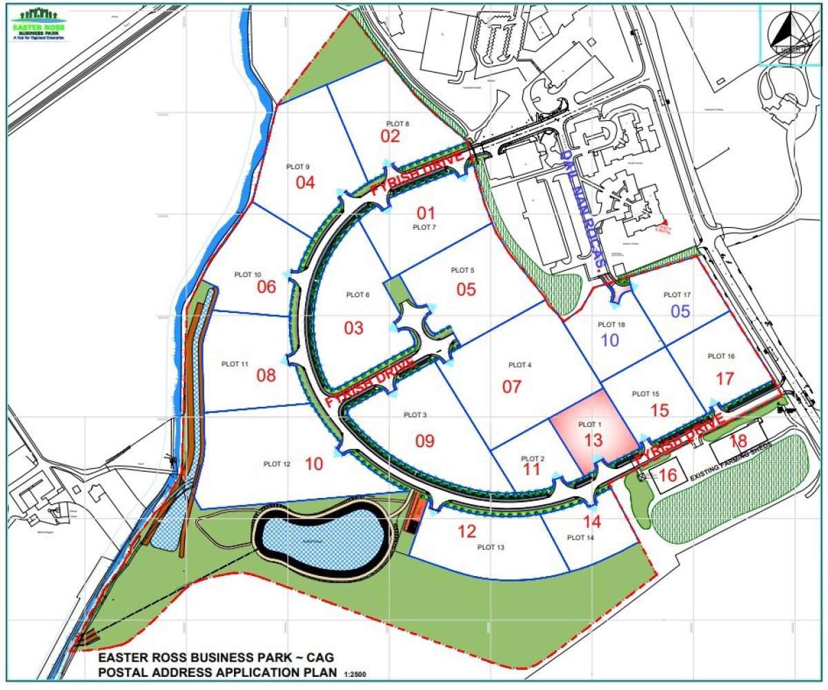
The Easter Ross Business Park is located in the Inverness and Cromarty Firth Green Freeport.
Over 32 Acres Of Flexible Development Space, Ideal For Industrial Use, Office Space, Or Dedicated Yard Space - Or Even A Combination Of All Three. Zoned Areas Ready For Development:- Flexible Unit Sizes From Small To Extra-large- Custom Plots, Including Two Acres Or More- Design And Fit-out To Suit Your Business Needs. Join A Thriving Business Community Located In The Inverness And Cromarty Firth Green Freeport.
The Easter Ross Business Park Is Located In The Inverness And Cromarty Firth Green Freeport.
About the Agent
Graham & Sibbald-Inverness
See Agent's Other PropertiesLand
POA
Land Easter Ross Business Park, Inverness, IV17 0AH
Land -
Available
0 sq ft
0 sqm
Show phone number