







Land For Sale Shrewsbury
PROPERTY ID: 128231
PROPERTY TYPE
Land
STATUS
Available
SIZE
7.5 ACRES
Key Features
Property Details
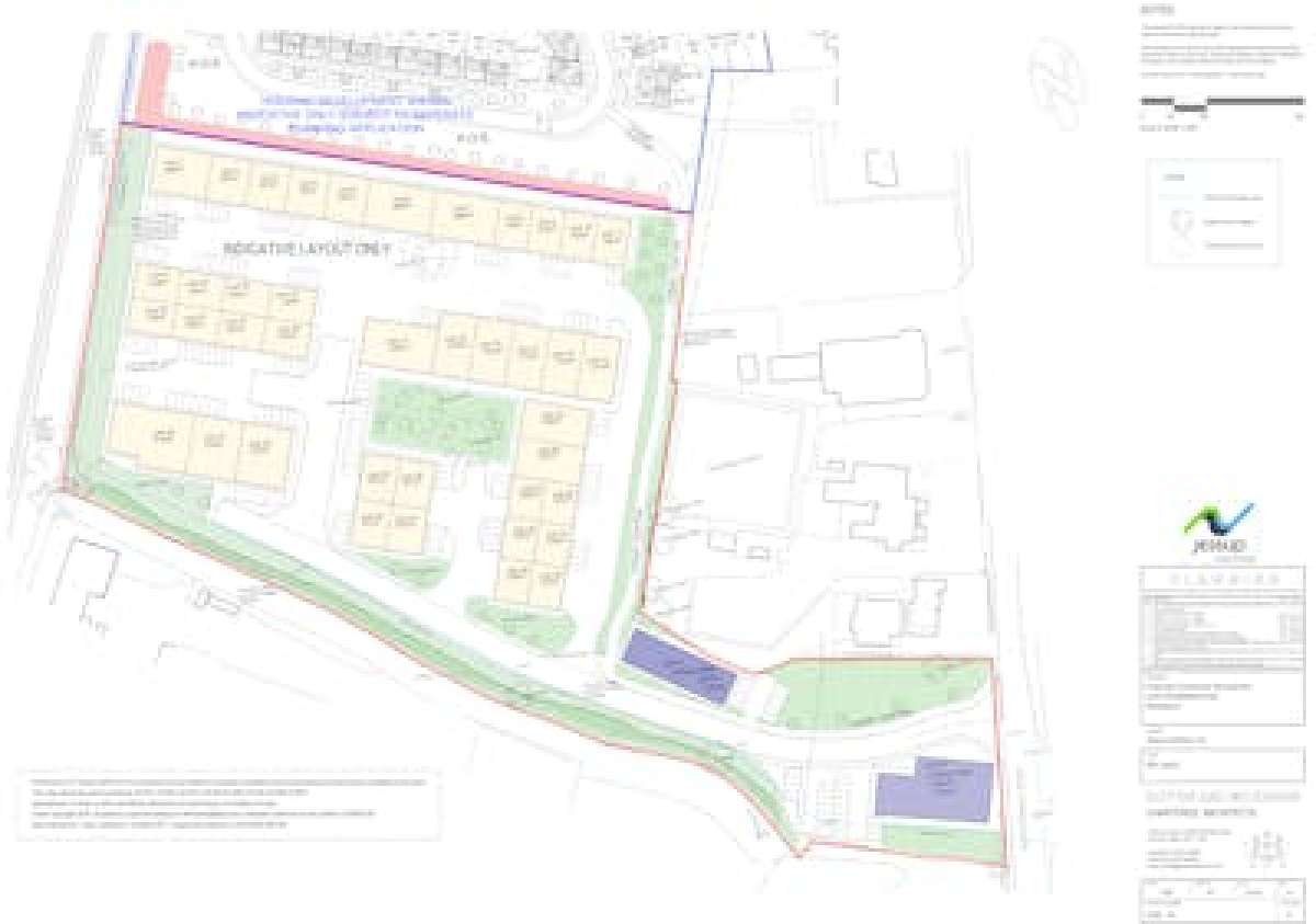
The Site Provides A Total Gross Site Area Of Approximately 7.50 Acres (3.03 Hectares) Of Allocated Employment Land That Is Accessed Directly From Battlefield Road. The Site Is Currently Subject To Outline Planning Permission For A Commercial Development That Would Provide A Development With A Total Net Developable Area Of Approximately 5.4 Acres (2.185 Hectares) Under Planning Reference Number 22/00177/out.
Further Details Relating To The Planning Application Are Available From The Selling Agent And Are As Per The Illustrative Plan On The Particulars.
The Commercial Land Would Ideally Lend Itself To A Commercial Development For Owner Occupation Or Investment Purposes And Is Located In The Sought After Commercial Quarter Of The Town Of Shrewsbury.