Retail/Shop
Retail/Shop To Let Kingstanding
PROPERTY ID: 148184
PROPERTY TYPE
Retail/Shop
STATUS
Available
SIZE
2,042 sq.ft
Key Features
Total NIA: 2,042 sq ft (189.73 sq.m)
Suitable for a variety of uses (STP)
Good levels of footfall and passing traffic
Rent on application
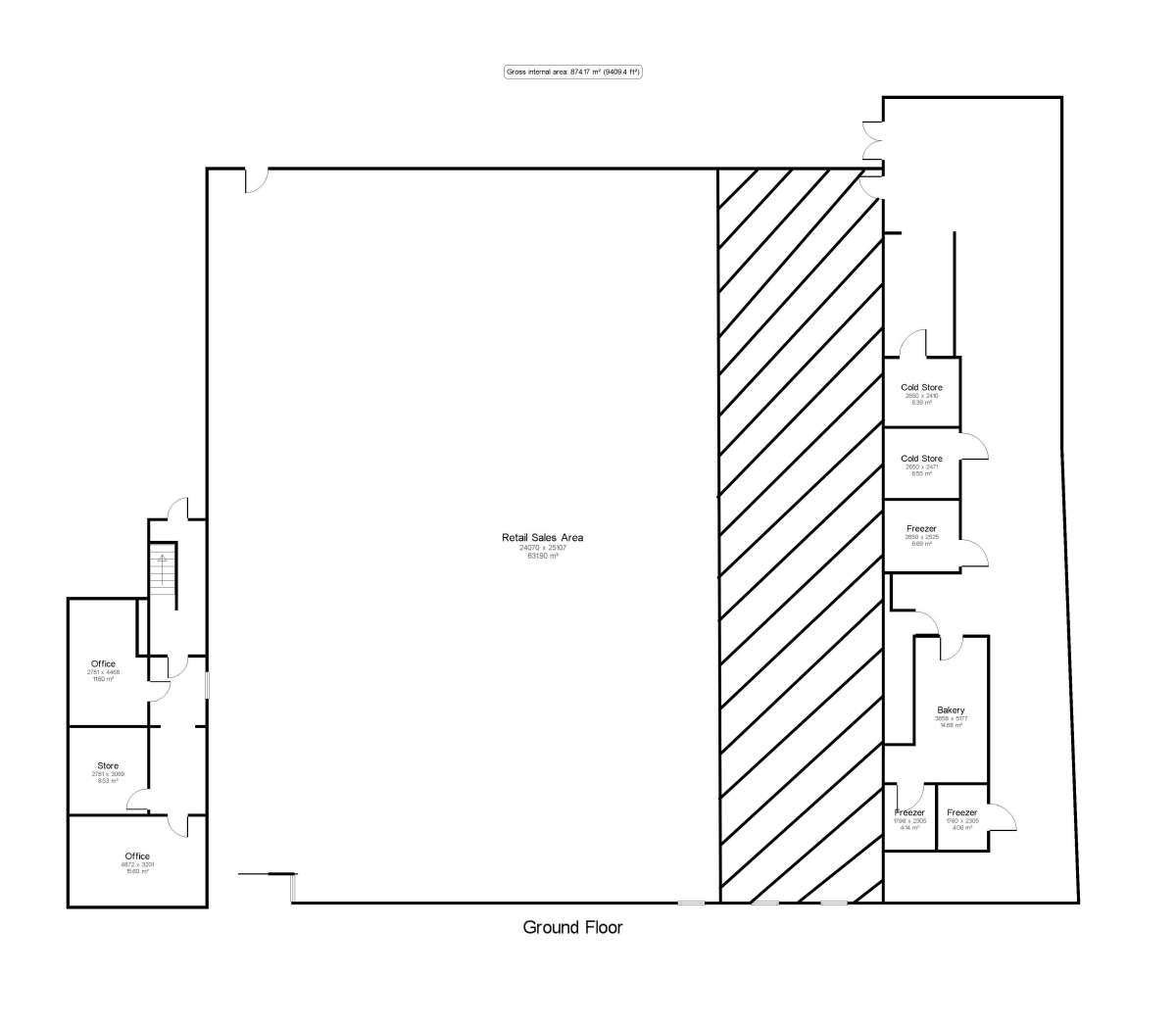
Property Details
The Subject Property Comprises A Ground Floor Retail Premises Which Forms Part Of Morrison's Daily. The Premises Will Be A Self-contained Unit.
The Property Is Of Open Plan Accommodation With A Suspended Ceiling And Led Lighting Benefiting From A Prominent Frontage Onto Hawthorn Road.
About the Agent
Innes England
See Agent's Other PropertiesRetail Unit
POA
Part 109 - 119 Hawthorn Road, Kingstanding, B44 8QT
Retail/Shop -
Available
2,042 sq ft
190 sqm
Show phone number
























































































































