Retail/Shop To Let Derby
PROPERTY ID: 147148
PROPERTY TYPE
Retail/Shop
STATUS
Available
SIZE
1,544 sq.ft
Key Features
Property Details
Description
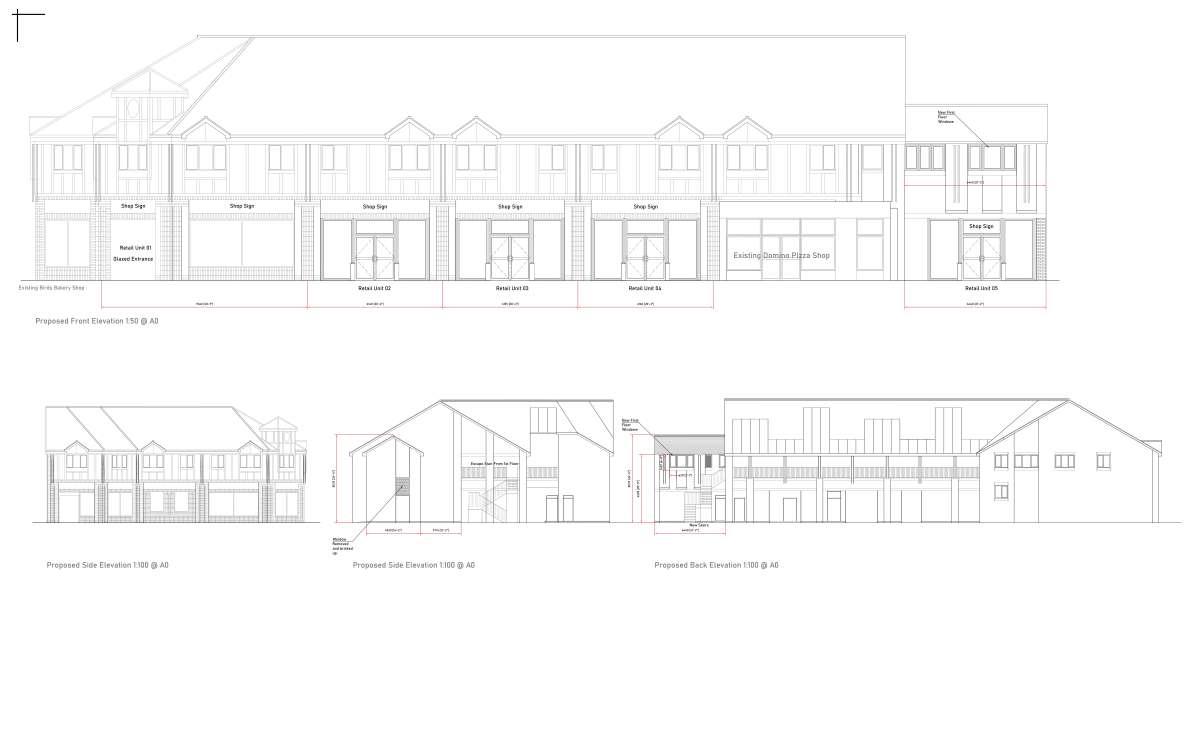
Former Co-op Convenience Store. Prime Position In Neighbourhood Centre Next To Birds Bakery And Domino's.
Prominent Corner Unit Can Be Let As A Whole Or May Split. Planning Currently Submitted To Sub Divide Into 5 New Retail Units As Follows:
Unit 2a - 114.8 Sq M (1,237 Sq Ft) - Under Offer
Unit 2b - 143.4 Sq M (1,544 Sq Ft) - £34,000 P.a.
Unit 2c - 85.6 Sq M (921 Sq Ft) Under Offer
Expressions Of Interest For The Units Invited On A Stp Basis. To Be Constructed To A Shell Ready For Occupier Fit Out.
Some Staff Parking To The Rear With Loading. Additional Onsite Pay And Display Or Free Street Parking
Viewing
Please Check Our Data Room For A Virtual Tour. Physical Viewings With Proceedable Parties Can Be Arranged On Request By Contacting Our Commercial Property Agents. Omeeto Do Not Take Any Responsibility For Any Loss Or Injury Caused Whilst Carrying Out A Site Visit.
Vat
All Figures Are Quoted Exclusive Of Vat, We Are Advised The Property Is Registered For Vat Which Is Applicable At The Prevailing Rate.
Epc
The Existing Building Is Currently Assessed As B(47). A New Epc Shall Be Commissioned For Completion On The Proposed Units.







.jpg)































.jpg)









































































