







Retail/Shop For Sale Uttoxeter
PROPERTY ID: 144968
PROPERTY TYPE
Retail/Shop
STATUS
Available
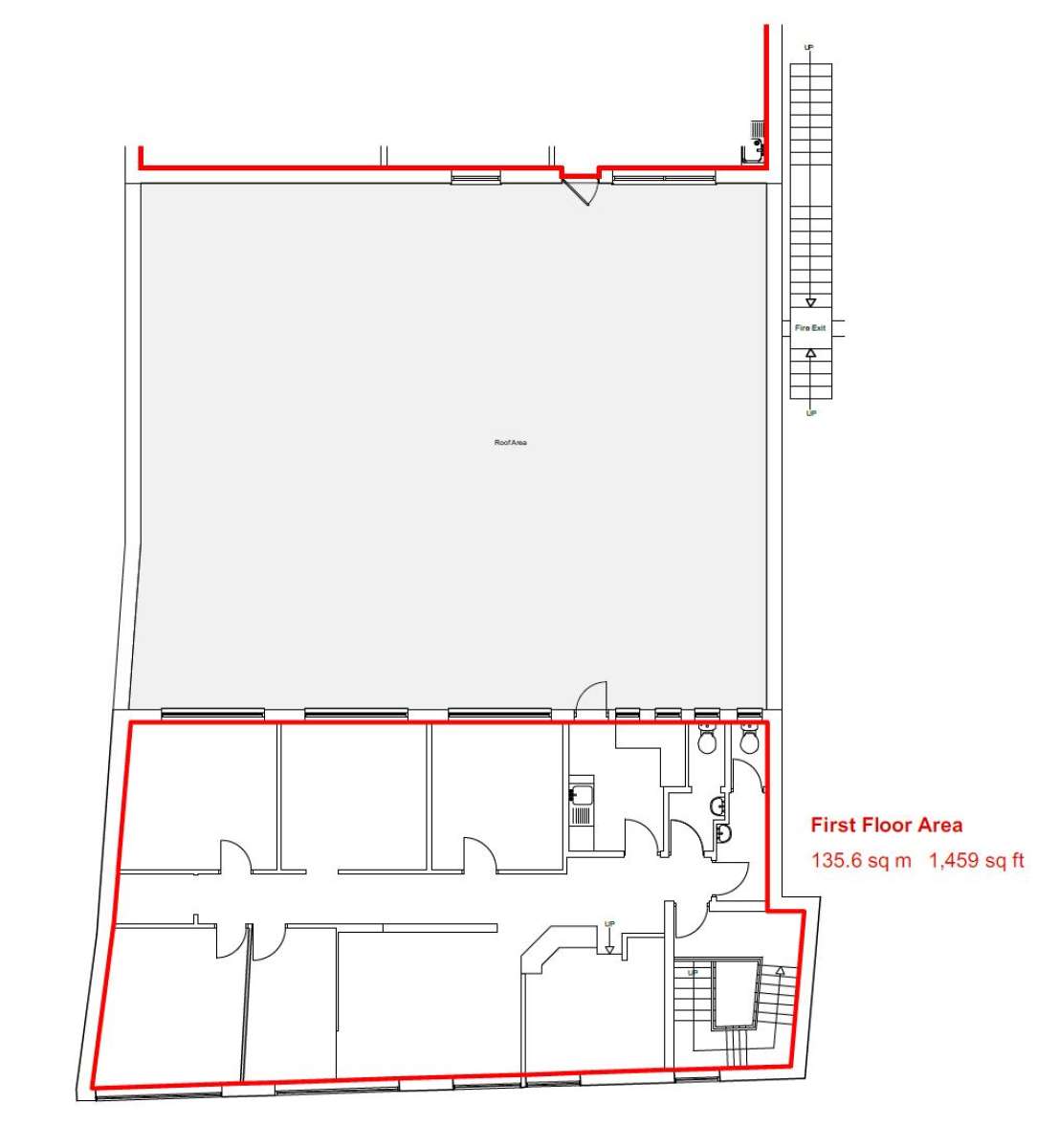
SIZE
1,578 sq.ft
Key Features
Property Details
The subject property occupies a prime location on High Street, Uttoxeter near to Bear Coffee, Fueled, Barclays Bank, ASDA, Home Bargains and Barnardo's.
Location
The Subject Property Occupies A Prime Location On High Street, Uttoxeter Near To Bear Coffee, Fueled, Barclays Bank, Asda, Home Bargains And Barnardo's.
Description
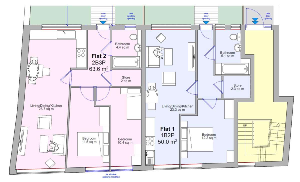
The Property Is Connected To Carters Square Retail Scheme Which Serves As The Town's Prime Retailing Location And Offers An Opportunity To Convert The Space Into 3 X 2-bed Apartments, Subject To Planning.
Tenure Comments
The Property Is Available By Way Of A New Long-lease (250 Years) At A Peppercorn Rent. All Necessary Rights To Redevelop / Refurbish The Space Will Be Granted And Associated Rear Access.
Epc
Epc: C (66). Valid Until April 2034.
Insurance
The Freeholder Insures The Whole Of The Premises And Will Recharge An Appropriate And Reasonable Proportion To The Long-leaseholder On An Annual Basis.
Planning
The Buyer Will Be Responsible For Obtaining The Necessary Planning Permission For The Conversion.
Vat
The Property Is Elected For Vat.
Legal Costs
Each Party Will Be Responsible For Covering Their Own Legal Costs Incurred In The Transaction.