Retail/Shop For Sale Louth
PROPERTY ID: 142245
PROPERTY TYPE
Retail/Shop
STATUS
Under Offer
SIZE
4,406 sq.ft
Key Features
Property Details
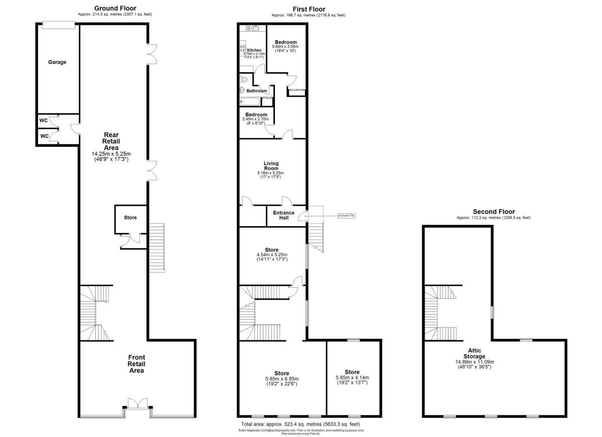
The property is a Grade II listed, mid-terraced Retail Unit spread over three floors together with a first-floor 2-bedroom flat and car park to the rear.
The Retail Unit comprises of a sales area, kitchen, 3 stores and WC's on the ground floor. The first and second floors comprises of 2 stores and a showroom.
The first floor flat (12A Mercer Row) has its own access from the car park and comprises of 2 bedrooms, kitchen, lounge & bathroom/WC. Externally the property has a car park the rear for approximately 14 cars and an additional store accessed through a roller shutter door. 9 parking spaces are currently let on verbal agreements producing a rental income of £3,240 per annum. The car park has the potential for redevelopment, subject to necessary planning consents and accessed through Kidgate Mews to the South of the property
Retail Unit Spread Over 3 Floors, First Floor 2 Bedroom Flat And Car Park
Car Park To The Rear For Approximately 14 Cars
Potential For Redevelopment, Subject To The Necessary Planning Consents
Prominent Town Centre Location
Retail Shop, 2 Bedroom Flat And Car Park - For Sale
Potential Development Opportunity
Guide Price £300,000 Freehold
Retail Shop, 2 Bedroom Flat And Car Park - For Sale
Potential Development Opportunity
12 Mercer Row, Louth Ln11 9jq
Guide Price: £300,000 Freehold
Detailed Description
The Property Is A Grade Ii Listed, Mid-terraced Retail Unit Spread Over Three Floors Together With A First-floor 2-bedroom Flat And Car Park To The Rear.
The Retail Unit Comprises Of A Sales Area, Kitchen, 3 Stores And Wc's On The Ground Floor. The First And Second Floors Comprises Of 2 Stores And A Showroom.
The First Floor Flat (12a Mercer Row) Has Its Own Access From The Car Park And Comprises Of 2 Bedrooms, Kitchen, Lounge & Bathroom/wc. Externally The Property Has A Car Park The Rear For Approximately 14 Cars And An Additional Store Accessed Through A Roller Shutter Door. 9 Parking Spaces Are Currently Let On Verbal Agreements Producing A Rental Income Of £3,240 Per Annum. The Car Park Has The Potential For Redevelopment, Subject To Necessary Planning Consents And Accessed Through Kidgate Mews To The South Of The Property
Location
Louth Is A Popular Market Town Located In The East Lindsey District In Lincolnshire, Approximately 14 Miles South Of Grimsby And 24 Miles North East Of Lincoln And On The Edge Of The Lincolnshire Wolds.
The Subject Property Is Situated In The Centre Of The Town In An Excellent Trading Location. Neighbours Include Lloyds Bank, Boots And Cafe Nero.
















































































