Office To Let Hebden Bridge
PROPERTY ID: 148582
PROPERTY TYPE
Office
STATUS
Available
SIZE
914 sq.ft
Key Features
Property Details
The property is located along Hangingroyd Lane opposite the Market Place car park opposite Valley Road in the centre of Hebden Bridge. Both the A646 Burnley Road and the local train station which lies on the Manchester/Leeds line are within five minutes walking distance. Hebden Bridge itself is a popular tourist destination and lies approximately 7 miles west of Halifax Town Centre alongside the Rochdale Canal and River Calder.
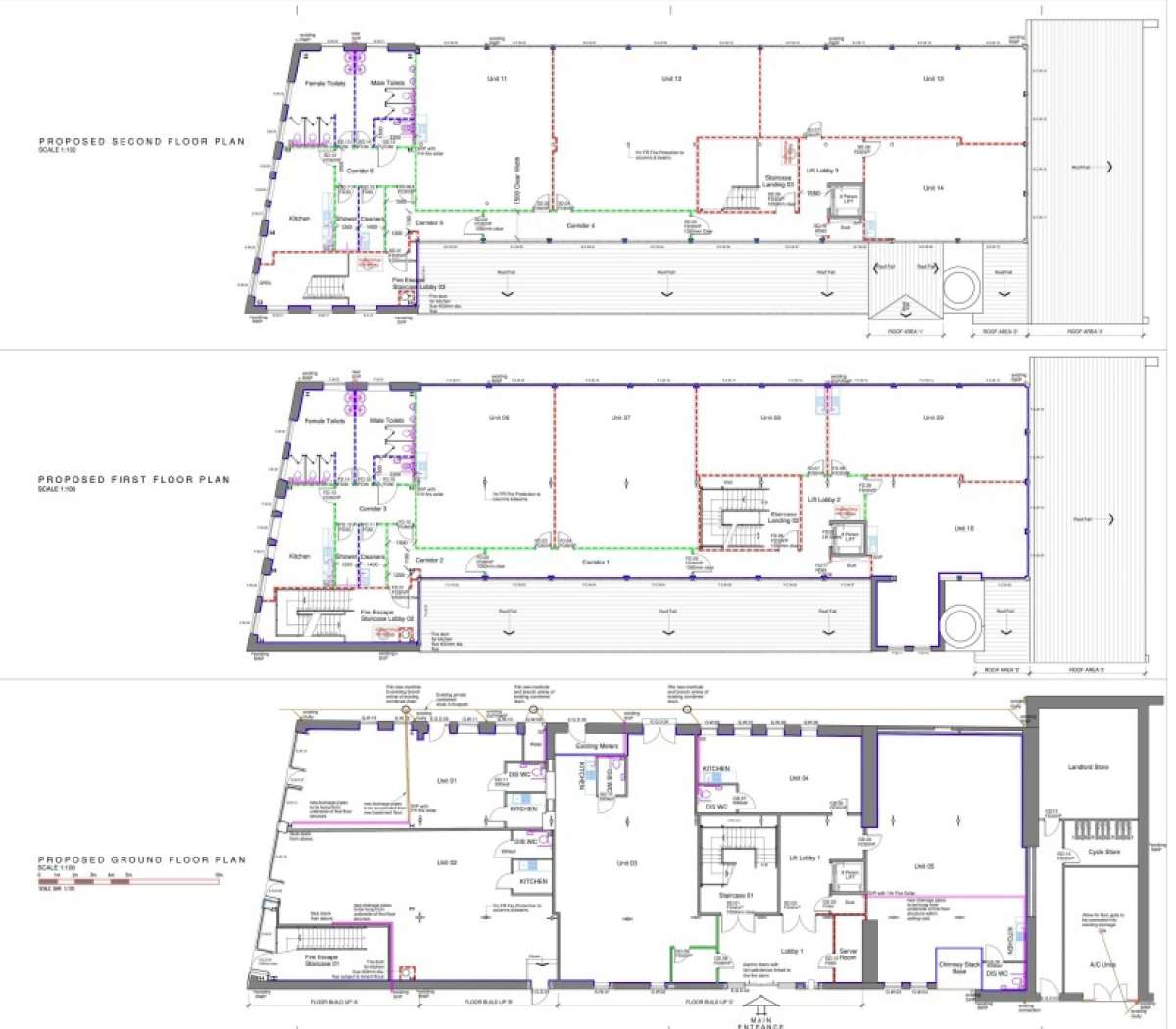
Burlees House Is A Newly Redeveloped Property In The Heart Of Hebden Bridge, Set Over Three Floors Offering Suites Ranging From 362 Sq Ft - 1,014 Sq Ft.
The Suites Are Considered To Be Suitable For A Variety Of Uses Falling Under Use Class E To Include Offices, Leisure Uses, Yoga Studio, Treatment Rooms Etc. And Are Accessed Via The Car Park Along Bond Street. Burlees House Benefits From Having On Site Car Parking With Electric Car Charging Points, 24 Hour Access, Heating/cooling Systems, Perimeter Trunking, Cctv To Cover The Car Park And Communal Areas, Communal Kitchen, W/c And Shower Facilities.
The Second Floor Suites Offer Views Across Hebden Bridge.
Available From November 2025.
Mains Services Connected To The Premises Include Electricity, Water And Drainage. Please Note These Services Have Not Been Tried Or Tested And Any Interested Parties Are Advised To Satisfy Themselves As To Suitability And Condition.
Cgi Images Are For Indicative Purposes Only.













































































































