1/4
Office

Office To Let Congleton

PROPERTY ID: 145708

PROPERTY TYPE

Office

STATUS

Available

SIZE

0 sq.ft

Key Features

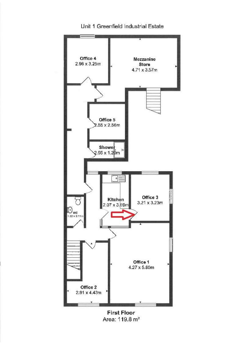
LOCK UP OFFICE SUITE
10' 6'' x 10' 7'' (3.21m x 3.23m)
ALL INCLUSIVE RENT
24 HOUR ACCESS

Property Details

Your Ideal Workspace Awaits – Simple, Smart, All-inclusive!<br />
<br />
Looking For A Professional Space That Adapts To Your Needs? This Modern Lock-up Suite Offers 24/7 Access And A Clean, Secure Environment — Perfect For Office Use Or Client-facing Services Like Beauty Treatments, Physiotherapy, Or Chiropractic Care.<br />
<br />
For Just £175 + Vat Per Month, Enjoy A Fully Inclusive Package Featuring:<br />
• Fast, Reliable Wi-fi<br />
• Heating & Electricity<br />
• bright, Energy-efficient Lighting<br />
• stylish Communal Kitchen<br />
• well-maintained Wc Facilities<br />
<br />
Location Perks:<br />
Situated On The Popular Greenfield Industrial & Office Estate, Right On The Edge Of Congleton, With Quick Access To M6 Junctions 17, 18 & 19 – Ideal For Regional Travel And Logistics.<br />
<br />
Your Suite Includes:<br />
• Size: 10'6" X 10'7" (3.21m X 3.23m)<br />
• private, Lockable Door<br />
• access Via Communal Entrance And Staircase<br />
<br />
Whether You're A Freelancer, Growing Startup, Or Remote Team, This Space Offers A Cost-effective, Professional Environment To Help Your Business Thrive.

About the Agent

Timothy A Brown Estate Agents

See Agent's Other Properties

Office Unit

£2,100 / pa
£175 / month

Greenfield Farm Industrial Estate, Congleton, CW12 4TR
Office - Available
0 sq ft
0 sqm
Show phone number

Enquiry Form

Boxpod will only use your details to send an enquiry to the advertiser and prompt a response. By clicking the Send Enquiry button, you agree to Boxpod's Privacy Policy Please wait for a response. It may take several seconds.

Similar to this property

To Let
£175 / month

Congleton, CW12 4TR

Office

To Let
£500 / month

Congleton, CW12 1LA

Office

To Let
£625 / month

Congleton, CW12 1RY

Office

To Let
£130 / month

Congleton, CW12 1AB

Office

To Let
£867 / month

Congleton, CW12 1JG

Office

To Let
POA

Congleton, CW12 4AB

Office

To Let
POA

Congleton, CW12 4AB

Office

To Let
POA

Congleton, CW12 4AB

Office

To Let
£300 / month

Congleton, CW12 4AB

Office

To Let
£1167 / month

Congleton, CW12 1RU

Office

To Let
£3625 / month

Congleton, CW12 1QY

Office

To Let
POA

Congleton, CW12 4SN

Office

To Let
POA

Congleton, CW12 4SN

Office

To Let
POA

Congleton, CW12 4SN

Office

To Let
£1667 / month

Macclesfield, SK11 9JA

Office

To Let
£282 / month

Macclesfield, SK11 9HW

Office

To Let

Congleton, CW12 2FQ

Office

To Let

Holmes Chapel, CW4 8DJ

Office

To Let
£250 / month

Macclesfield, SK11 8HX

Office

To Let
£3650 / month

Macclesfield, SK11 6QG

Office

To Let
£795 / month

Macclesfield, SK11 7HG

Office

To Let
£1083 / month

Macclesfield, SK11 6QG

Office

To Let
£245 / month

Macclesfield, SK11 6DU

Office

To Let
£368 / month

Macclesfield, SK11 6PL

Office

To Let
POA

Macclesfield, SK10 4TF

Office

To Let
£435 / month

Macclesfield, SK11 6HX

Office

To Let
Starting From £510 / month

Macclesfield, SK11 6DU

Office

To Let
POA

Macclesfield, SK11 6DY

Office

To Let
£1400 / month

Macclesfield, SK10 1JQ

Office

To Let
£542 / month

Macclesfield, SK11 6AS

Office

To Let
£492 / month

Macclesfield, SK10 1ER

Office

To Let
Starting From £567 / month

Macclesfield, SK10 1ER

Office

To Let
£2563 / month

Macclesfield, SK11 6JX

Office

To Let
£934 / month

Macclesfield, SK10 1LJ

Office

To Let
POA

Macclesfield, SK10 2NZ

Office

To Let
£435 / month

Macclesfield, SK10 2NG

Office

To Let
£400 / month

Macclesfield, SK10 2SF

Office

To Let
POA

Macclesfield, SK10 2LP

Office

To Let
£350 / month

Alderley Edge, SK9 7TY

Office

To Let
£1050 / month

Alderley Edge, SK9 7TY

Office

To Let
£350 / month

Alderley Edge, SK9 7TY

Office

To Let
£1050 / month

Alderley Edge, SK9 7TY

Office

To Let
Starting From £3569 / month

Crewe, CW1 5UE

Office

To Let
£480 / month

Alderley Edge, SK9 7JS

Office

To Let
£625 / month

Leek, ST13 5JE

Office

To Let
£792 / month

Crewe, CW1 2HE

Office

To Buy
£250000 Freehold

Hanley, ST1 1PW

Office

To Let
£4917 / month

Crewe, CW1 2LQ

Office

To Let
POA

Newcastle, ST5 1EL

Office

To Let
POA

Wilmslow, SK9 1AX

Office

To Let
Starting From £1194 / month

Newcastle, ST5 5NL

Office

To Let
£1333 / month

Hanley, ST4 2HX

Office

To Buy
POA

Macclesfield, SK10 4NL

Office

To Buy
POA

Macclesfield, SK10 4NL

Office

To Buy
POA

Macclesfield, SK10 4NL

Office

To Let
Starting From £600 / month

Woodford, SK7 1QS

Office

To Let
Starting From £2667 / month

Macclesfield, SK10 4NL

Office

To Buy
POA

Northwich, CW9 7LS

Office

To Let
POA

Northwich, CW9 7LS

Office

To Let
POA

Wilmslow, SK9 4LD

Office

To Let
POA

Wilmslow, SK9 4LD

Office

To Let
POA

Stockport, SK12 1HB

Office

To Buy
POA

Manchester, M22 5TG

Office

To Let
POA

Nantwich, CW5 6LH

Office

To Let
£349 / month

Manchester, M90 3RR

Office

To Let
Starting From £424 / month

Manchester, M90 4WP

Office

To Buy
POA

Manchester, M90 4WP

Office

To Let
Starting From £330 / month

Manchester, M22 5TG

Office

To Let
Starting From £7 / month

Manchester, M22 5TG

Office

To Let
POA

Manchester, M22 5TG

Office

To Let

Heald Green, M22 5LB

Office

To Let
£1355 / month

Knutsford, WA16 6LE

Office

To Let
Starting From £440 / month

Cheadle, SK8 3TD

Office

To Let
POA

Cheadle, SK8 3GP

Office

To Let
Starting From £320 / month

Cheadle, SK8 3GP

Office

To Buy
POA

Cheadle, SK8 3GP

Office

To Let
£3000 / month

Altrincham, WA14 3RZ

Office

To Let
POA

High Peak, SK23 7LX

Office

To Let
POA

Tarporley, CW6 9LB

Office

To Let
POA

Cheadle, SK8 1DR

Office

To Let
Starting From £867 / month

Cheadle, SK8 1NZ

Office

To Let
Starting From £500 / month

Wythenshawe, M23 9GP

Office

To Let
POA

Manchester, M22 4RW

Office

To Let
POA

Cheadle, SK8 2JX

Office

To Let
Starting From £21 / month

Altrincham, WA14 4DW

Office

To Let
POA

Altrincham, WA14 4DZ

Office

To Let
£1550 / month

Manchester, M20 2DX

Office

To Let
POA

Manchester, M20 2YY

Office

To Let
Starting From £360 / month

Manchester, M20 2YY

Office

To Let
Starting From £5 / month

Manchester, M20 2YY

Office

To Let
£6651 / month

Altrincham, WA14 5BJ

Office

To Let
POA

Altrincham, WA14 5NQ

Office

To Let
POA

Stockport, SK1 1EW

Office

To Let
POA

Stockport, SK1 1EW

Office

To Let
POA

Stockport, SK1 1EW

Office

To Let
Starting From £25 / month

Stockport, SK1 1RX

Office

To Let
Starting From £203 / month

Stockport, SK1 1TB

Office

To Let
£1300 / month

Altrincham, WA14 5ES

Office

To Let
£195 / month

Sale, M33 3HD

Office

To Let
£1750 / month

Lymm, WA13 0QS

Office