







Office
Office To Let Rainham
PROPERTY ID: 142827
PROPERTY TYPE
Office
STATUS
Available
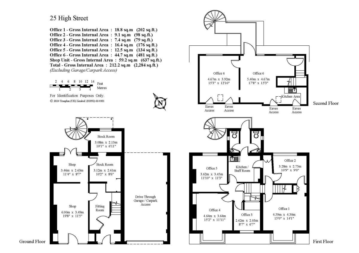
SIZE
176 sq.ft
Key Features
176 Sq Ft Office
Secure Parking
Air Conditioning
Communal Kitchen & Toilets
Video Intercom System
Rent Inclusive Of Utilities
Property Details
The premises are located in a prominent position on Rainham High Street/A2 and are easily accessible from Sittingbourne and the Medway Towns (Rochester, Chatham and Gillingham.
This Well-appointed First Floor Office Comes With The Following Benefits:
- Secure Parking To The Rear Of The Building
- Air Conditioning
- Clean Communal Kitchen & Wcs
- Video Intercom System
- Individual Office Alarms
- Directional Office Signage For Your Business/brand
Each Office Comes With A Set Of Keys And A Shutter Fob To The Rear Car Park.
About the Agent
Harrisons Property Surveyors Ltd
See Agent's Other PropertiesOffice Unit
£7,200 / pa
£600 / month
Office 4,25 High Street, Rainham, ME8 7HX
Office -
Available
176 sq ft
16 sqm
Show phone number