







Office
Office For Sale Birmingham
PROPERTY ID: 141879
PROPERTY TYPE
Office
STATUS
Under Offer
SIZE
267,459 sq.ft
Key Features
Significant lakeside redevelopment opportunity.
6.14 acres (2.59 hectares).
6,763 sq.m / 72,796 sq.ft (GIA) existing floor area.
247 car parking spaces.
Prior approval for change of use from Office to Resi.
Freehold disposal with vacant possession.
Offers to be invited on both unconditional and conditional basis via informal tender.
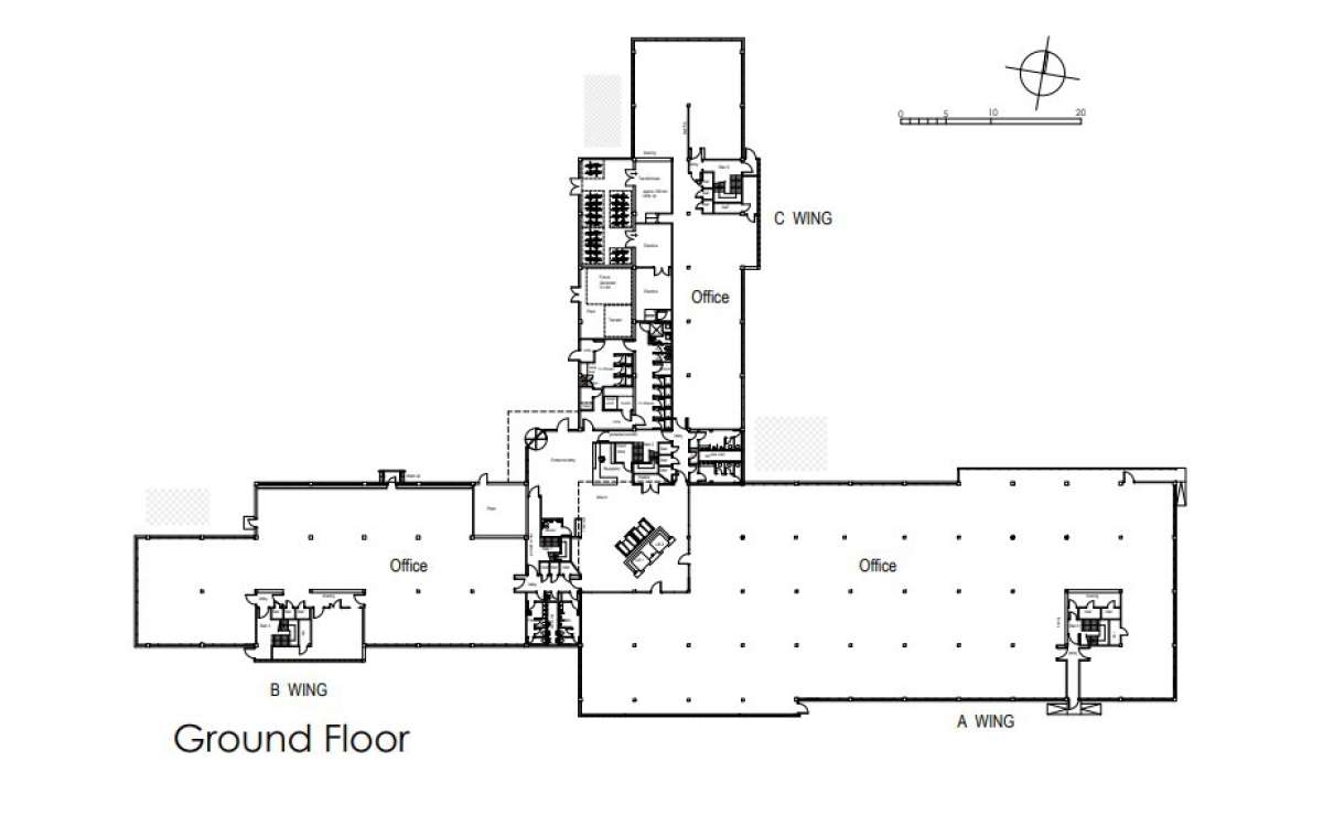
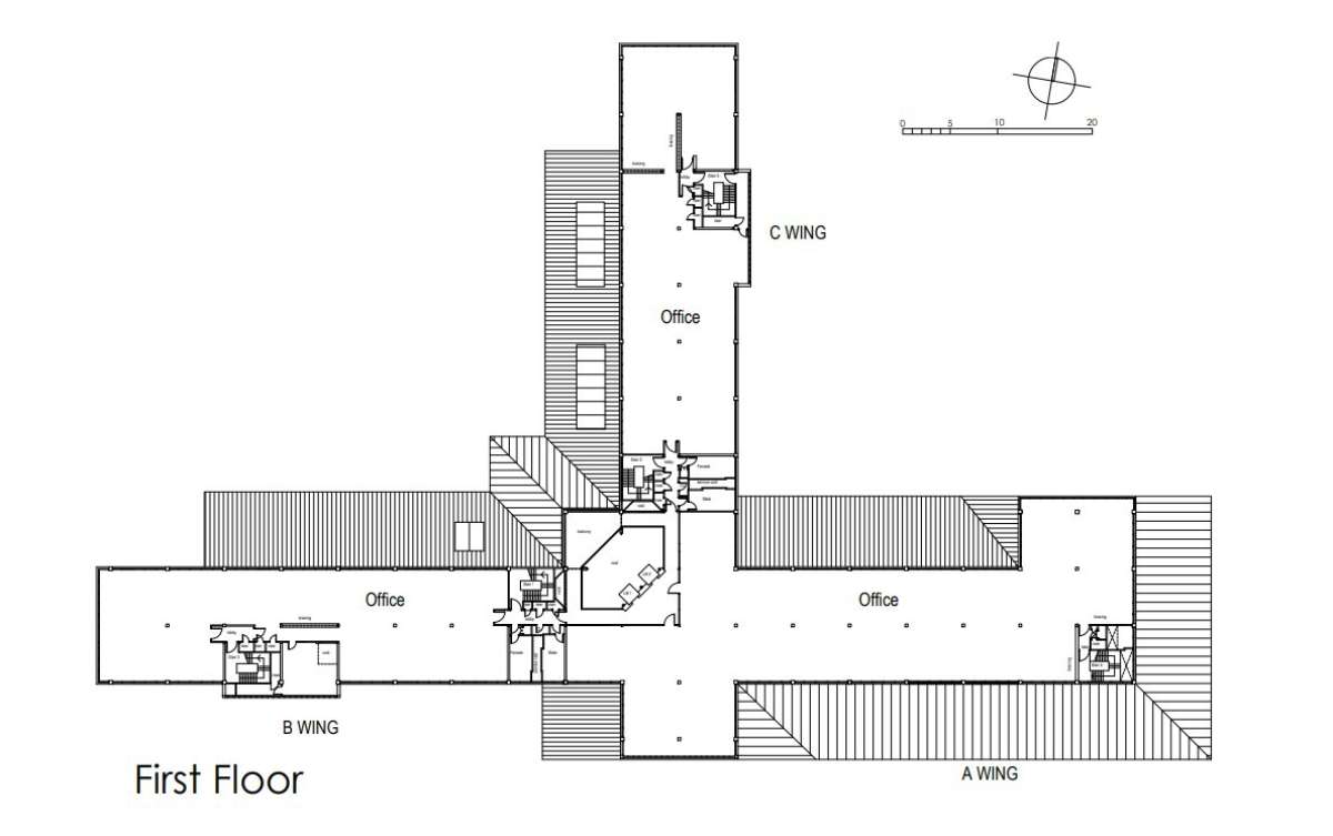
Property Details
Mercury House Compromises A Substantial Three-storey Office Building Overlooking Willen Lake. The Site Coverage Including The Building Footprint And Car Parking Equates To C. 47% Of The Total Site Area. The Site Offers A Great Opportunity To Either Convert The Existing Building Or Redevelop The Site On A Prime Lakeside Location.
In November 2024, Prior Approval Was Granted For The Change Of Use From Offices (e) To Residential (c3). The Proposed Development Comprises Of 83 Residential Units Split Over Three Floors.
About the Agent
LSH-Birmingham
See Agent's Other PropertiesOffice Unit
POA
Mercury House,Brickhill Street, Birmingham, MK15 0DJ
Office -
Under Offer
267,459 sq ft
24,848 sqm
Show phone number