Office
Office To Let Winchester
PROPERTY ID: 116979
PROPERTY TYPE
Office
STATUS
Available
SIZE
500-2,380 sq.ft
Key Features
Flexible Range of Office Suite Sizes
Close Proximity to Winchester
Local Bus & Train Routes Nearby
Generous Parking
Excellent Access to M3 / A34
The Energy Performance Asset Rating is C (74)
0.4 Acre Plot
Access Via B3335
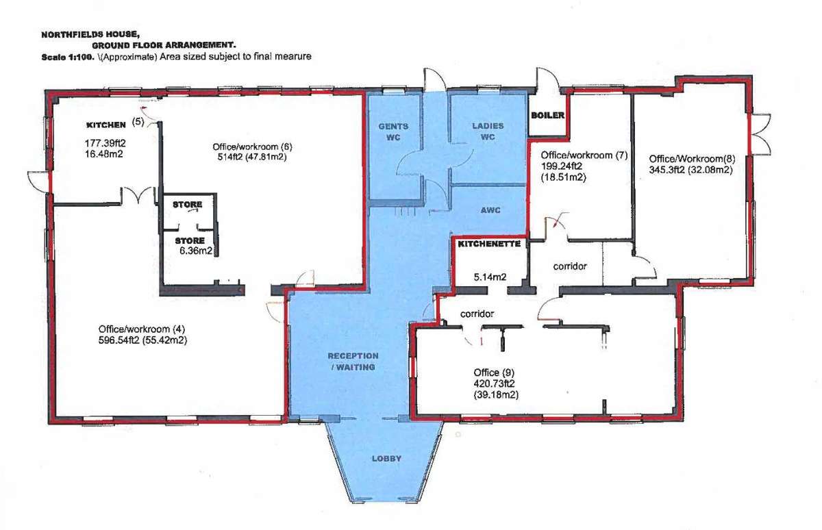
Property Details
A Detached Two Storey Office Building With Extensive Parking On A Generous Plot Of Approx. 0.4 Acres And Part Of The Established Hazeley Enterprise Park. Access To The Building Is Via A Lobby Leading Into A Reception With Communal Wc's At Ground Floor.
The Office Accommodation Is Divided Into Two Wings With Partitioning Creating Smaller Internal Office Suites.
About the Agent
LSH-Southampton
See Agent's Other PropertiesOffice Unit
Starting From £7,500 / pa
£625 / month
Ground Floor Northfields House,Northfields, Winchester, SO21 1QA
Office -
Available
500-2,380 sq ft
46-221 sqm
Show phone number













































































































