Industrial Unit For Sale Walton
PROPERTY ID: 150734
PROPERTY TYPE
Industrial Unit
STATUS
Available
SIZE
2,300 sq.ft
Key Features
Property Details
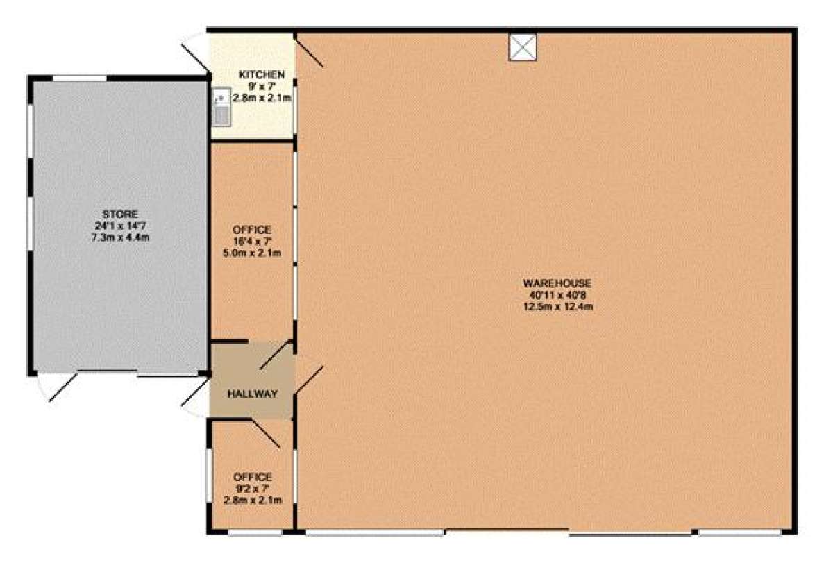
A versatile workshop/warehouse building with ancillary office accommodation, extending to approximately 2,300sqft GIA, and good sized yard to the front with a plot size of approximately 0.19 acres.
Currently occupied for storage and vehicle repairs the property has historically been used as a car garage and general warehousing depot. The property would suit a continued commercial workshop or similar use but may offer scope for redevelopment opportunities, STPP.
Use & Planning: Parties must satisfy themselves with regard to any existing, historic or potential planning matters. The building is currently used for storage and repair of vehicles.
A Versatile Workshop/warehouse Building With Ancillary Office Accommodation, Extending To Approximately 2,300sqft Gia, And Good Sized Yard To The Front With A Plot Size Of Approximately 0.19 Acres.
Currently Occupied For Storage And Vehicle Repairs The Property Has Historically Been Used As A Car Garage And General Warehousing Depot. The Property Would Suit A Continued Commercial Workshop Or Similar Use But May Offer Scope For Redevelopment Opportunities, Stpp.
Use & Planning: Parties Must Satisfy Themselves With Regard To Any Existing, Historic Or Potential Planning Matters. The Building Is Currently Used For Storage And Repair Of Vehicles.
Situated Off Creeches Lane, Walton Less Than 1 Mile From Street, Somerset. The A39 Which Leads Through Walton Links To The M5 And Bridgwater. What3words Location: ///mixer.pillow.fulfilled
The Principal Building Measures 12.5m Deep X 14.5m Wide (181.25sqm/1,950sqft) To Include The Workshop, Two Offices And A Kitchenette. 4.6m To The Ridge Height. Sliding Doors To The Front.
We Are Informed That Mains Water And Electricity Are Connected. Lpg Space Heater Within The Workshop. Private Drainage. Prospective Purchasers Should Satisfy Themselves In This Regard.
By Appointment Only Through The Sole Agents Cooper And Tanner 1908 Limited - 03450 34 77 58
We Understand That The Property Is Not Elected For Vat.
Agents Note: Photographs Taken During 2019 Marketing. To Be Updated.
Freehold
Versatile Workshop/warehouse
Additional 2 Offices
Previously Motor Repairs/car Garage
Ample Parking
May Offer Scope For Further Development
















































































































