Industrial Unit
Industrial Unit To Let Bournemouth
PROPERTY ID: 150519
PROPERTY TYPE
Industrial Unit
STATUS
Available
SIZE
1,875 sq.ft
Key Features
End terrace industrial/warehouse unit
Located on popular industrial park
5 allocated car parking spaces and a loading area
Undergoing refurbishment
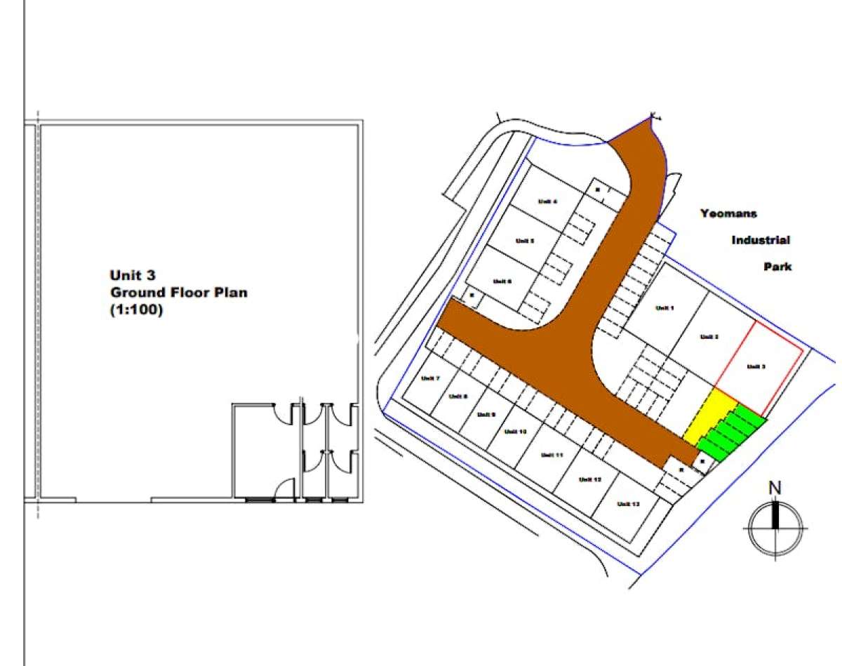
Property Details
This End Of Terrace Unit Is Of Blockwork Inner, Brickwork Outer Wall Construction With Steel Cladding To The Upper Elevations. There Is A Pitched Steel Clad Roof Incorporating Daylight Panels Supported Upon A Steel Portal Frame And The Internal Eaves Height Is Approximately 5m. Loading Is By Way Of A Roller Shutter Door Measuring Approx. 3m W X 4m H. There Is A Personnel Door Providing Access To An Office/reception Area With Lighting And A Tea Point. There Are W.c And Kitchenette Facilities. 3 Phase Electricity Is Available.
Externally, There Is A Tarmacadam Forecourt Providing 5 Allocated Car Parking Spaces And A Loading Area.
About the Agent
Vail Williams
See Agent's Other PropertiesIndustrial Unit
£26,500 / pa
£2,208 / month
Yeomans Way, Bournemouth, BH8 0BJ
Industrial Unit -
Available
1,875 sq ft
174 sqm
Show phone number












































































































