Industrial Unit To Let Dundee
PROPERTY ID: 149972
PROPERTY TYPE
Industrial Unit
STATUS
Available
SIZE
538-1,615 sq.ft
Key Features
Property Details
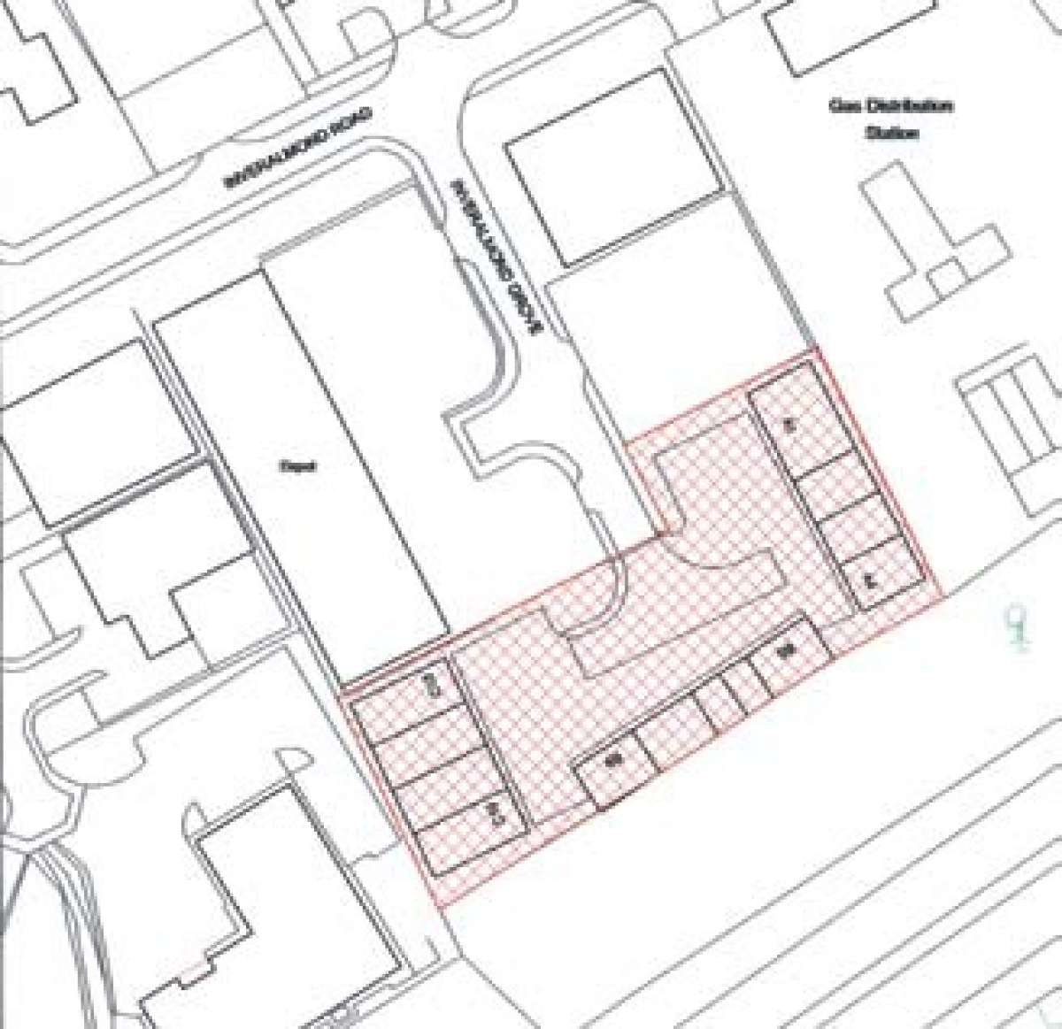
The Development Comprises A Range Of Modern Industrial Units Which Are All Of Steel Portal Frame Construction With Insulated Cladding And A Reinforced Concrete Floor Slab. Each Unit Includes W.c. Provision And Is Dda Compatible.
The Units Also Have The Benefit Of 3 Phase Power, Water And Gas. In Addition There Is Gas Warm Air Heating And Electrically Operated Up And Over Doors (3m X 3.25m). The Unit Sizes Range From 50sq.m (538sq.ft) To 150 Sq.m (1,615sq.ft) The Lease Of Each Unit Includes Access/use Of Communal Parking And Operational Space.
The City Of Perth Has A Resident Population Of Approximately 46,000 People With The Population Of The Surrounding Catchment Area Estimated To Be In The Region Of 130,000. Perth Lies Approximately 45 Miles North Of Edinburgh, 62 Miles North East Of Glasgow And 22 Miles To The West Of Dundee. Inveralmond Grove Comprises A Modern Industrial Development With Neighbouring Occupiers Including Royal Mail And Menzies Distribution.
The Subjects Are Suitable For Light Industrial And Storage Purposes And As Such Have Consent Under Classes 4, 5 And 6 Of The Town And Country Planning Act (use Classes) (scotland) Order 1997.


































.jpg)











































