







Office
Office To Let Edinburgh
PROPERTY ID: 144687
PROPERTY TYPE
Office
STATUS
Available
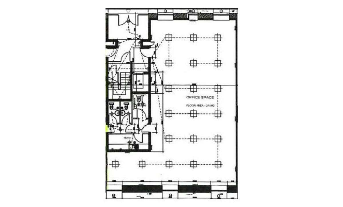
SIZE
1,641 sq.ft
Key Features
Flexible lease terms available
Newly refurbished
Secure cycle store and 2 car parking spaces
Tea prep and kitchen facilities
Bookable meeting rooms
Gas central heating and Air Conditioning
Male, female and accessible toilet facilities
Modern LED lighting
Property Details
The Property Comprises A Three Storey Converted Bonded Warehouse Building Which Provides Attractive Open Plan Office Accommodation On The Ground Floor.
Flexible Lease Terms Available
Newly Refurbished
Secure Cycle Store And 2 Car Parking Spaces
Tea Prep And Kitchen Facilities
Bookable Meeting Rooms
Gas Central Heating And Air Conditioning
Male, Female And Accessible Toilet Facilities
Modern Led Lighting
About the Agent
LSH-Edinburgh
See Agent's Other PropertiesOffice Unit
£29,538 / pa
£2,462 / month
Ground Floor East,112 Commercial Street, Edinburgh, EH6 6NF
Office -
Available
1,641 sq ft
152 sqm
Show phone number