1/4
Industrial Unit

Industrial Unit To Let Narborough

PROPERTY ID: 149869

PROPERTY TYPE

Industrial Unit

STATUS

Available

SIZE

28,345 sq.ft

Key Features

Three adjacent units
Available individually or as a whole
Parking
Loading apron with roller shutter doors

Property Details

Description<br>
<br>
The Properties Unit 1a,1b And 2a Are Available Individually, As A Whole Or A Combination Of. Please Contact The Letting Agent For Further Details. <br>
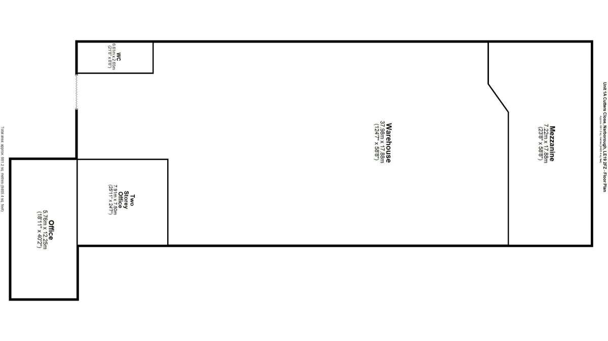
Unit 1a Measures 10,116 Sq Ft. With An Additional Mezzanine Measuring 1,369 Sq.ft.<br>
Unit 1b Measures 8,957 Sq,ft.<br>
Unit 2a Measures 9,272 Sq.ft. <br>
The Main Production Areas Are Arranged Under A Steel-portal Frame With Internal Clearance Of Approximately 6.1 Metres. Internally There Are Toilet Facilities, Gas Warm Air Blower, And Surface Mounted Lighting And 3-phase Electricity Supply.<br>
Unit 1a Comprises An End-terrace Factory/warehouse With Single-storey Offices Section, Toilet Facilities, Electrically Operated Roller Shutter Loading Door, 10% Translucent Roof Lights Plus Concrete Loading Apron.<br>
Unit 1b. Comprises A Mid-terrace Factory/warehouse With Toilet Facilities, Electrically Operated Roller Shutter Loading Door, 10% Translucent Roof Lights Plus Concrete Loading Apron.<br>
Unit 2a Comprises A Mid-terrace Factory/warehouse With Single-storey Offices Section, Toilet Facilities, Electrically Operated Roller Shutter Loading Door, 10% Translucent Roof Lights Plus Concrete Loading Apron.<br>
<br>
Location<br>
<br>
Cutters Close Is Accessed Via Coventry Road B4114. The Area Is A Mix Of Residential And Industrial Properties.<br>
<br>
Accommodation<br>
<br>
The Premises Are Available By Way Of A New Full Repairing And Insuring Lease At An Initial Rent Of £180,000 Per Annum. <br>
The Properties Have Been Measured On A Gross Internal Area (gia) Basis In Accordance With The Rics Code Of Measuring Practice Totalling 28,345 Sq.ft. Plus Mezzanine Of 1,369 Sq.ft.<br>
<br>
Each Party To Bear Their Own Legal Costs.<br>
<br>
Vat<br>
<br>
The Property Is Opted To Tax And Therefore Vat Is Applicable To The Rent Quoted.<br>
<br>
Epc<br>
<br>
The Properties Are Currently Being Assessed With Regard To Energy Performance And An Epc Will Be Available Shortly.

About the Agent

Industrial Unit

£180,000 / pa
£15,000 / month

Unit 1A 1B & 2A,Cutters Close Narborough, Narborough, LE19 2FZ
Industrial Unit - Available
28,345 sq ft
2,633 sqm
Show phone number

Enquiry Form

Boxpod will only use your details to send an enquiry to the advertiser and prompt a response. By clicking the Send Enquiry button, you agree to Boxpod's Privacy Policy Please wait for a response. It may take several seconds.

Similar to this property

To Let
£6063 / month

Narborough, LE19 2FZ

Industrial Unit

To Let
£5250 / month

Narborough, LE19 2FZ

Industrial Unit

To Let
£5833 / month

Narborough, LE19 2FZ

Industrial Unit

To Let
£1000 / month

Leicester, LE19 4NT

Industrial Unit

To Let
POA

Leicester, LE8 6LH

Industrial Unit

To Let
POA

Leicester, LE8 6LH

Industrial Unit

To Let
£7500 / month

Leicester, LE8 6LH

Industrial Unit

To Let
£5208 / month

Leicester, LE8 6LH

Industrial Unit

To Let
£5417 / month

Whetstone, LE8 6LH

Industrial Unit

To Let
£750 / month

Leicester, LE19 4XL

Industrial Unit

To Let
£750 / month

Enderby, LE19 4XL

Industrial Unit

To Let
£1875 / month

Leicester, LE8 4GZ

Industrial Unit

To Let
£31667 / month

Leicester, LE8 4GZ

Industrial Unit

To Let
POA

Leicester, LE2 9TF

Industrial Unit

To Let
£8333 / month

Glen Parva, LE2 9TF

Industrial Unit

To Let
POA

Leicester, LE9 6QF

Industrial Unit

To Let
POA

Leicester, LE9 6QF

Industrial Unit

To Let
POA

Leicester, LE9 6QF

Industrial Unit

To Let
£12500 / month

Leicester, LE19 1UX

Industrial Unit

To Let
£3625 / month

Leicester, LE9 6TU

Industrial Unit

To Let
£1583 / month

Broughton Astley, LE9 6TU

Industrial Unit

To Let
£6250 / month

Lutterworth, LE9 6TU

Industrial Unit

To Let
POA

Leicester, LE9 4DJ

Industrial Unit

To Let
£4583 / month

Leicester, LE9 4LX

Industrial Unit

To Let
£4583 / month

Leicester, LE9 4LX

Industrial Unit

To Let
£5417 / month

Leicester, LE9 1RH

Industrial Unit

To Buy
£400000 Freehold

Leicester, LE8 5RF

Industrial Unit

To Buy
£475000 Freehold

Leicester, LE8 5RF

Industrial Unit

To Buy
£200000 Freehold

Leicester, LE8 5RF

Industrial Unit

To Buy
£1275000 Freehold

Leicester, LE2 6UP

Industrial Unit

To Let
£1792 / month

Wigston, LE18 4XY

Industrial Unit

To Let
POA

Wigston, LE18 4ZH

Industrial Unit

To Let
POA

Wigston, LE18 4ZH

Industrial Unit

To Let
POA

Wigston, LE18 4ZH

Industrial Unit

To Let
POA

Wigston, LE18 4ZH

Industrial Unit

To Let
£875 / month

Leicester, LE2 8GB

Industrial Unit

To Let
£3167 / month

Wigston, LE18 2BL

Industrial Unit

To Let
POA

Wigston, LE18 2BL

Industrial Unit

To Let
POA

Wigston, LE18 2BL

Industrial Unit

To Let
£3708 / month

Wigston, LE18 2BL

Industrial Unit

To Let
£1667 / month

Wigston, LE18 2FB

Industrial Unit

To Let
£1875 / month

Wigston, LE18 2FB

Industrial Unit

To Let
£3333 / month

Wigston, LE18 2FB

Industrial Unit

To Let
£5000 / month

Wigston, LE18 2FB

Industrial Unit

To Let
£583 / month

Leicester, LE9 7DQ

Industrial Unit

To Let
£890 / month

Lutterworth, LE17 5LF

Industrial Unit

To Let
£833 / month

Leicester, LE9 7DQ

Industrial Unit

To Let
£890 / month

Lutterworth, LE17 5LF

Industrial Unit

To Let
£1875 / month

Leicester, LE2 7PA

Industrial Unit

To Let
POA

Leicester, LE3 1UJ

Industrial Unit

To Buy
£570000 Freehold

Leicester, LE9 7GB

Industrial Unit

To Buy
£350000 Freehold

Leicester, LE2 6LH

Industrial Unit

To Buy
£600000 Freehold

Earl Shilton, LE9 7ND

Industrial Unit

To Buy
£195000 Freehold

Leicester, LE2 7NG

Industrial Unit

To Let
Starting From

Leicester, LE3 1UQ

Industrial Unit

To Let
£3958 / month

Leicester, LE3 1UQ

Industrial Unit

To Let
£10417 / month

Leicester, LE3 1UQ

Industrial Unit

To Let
£5000 / month

Leicester, LE2 6BT

Industrial Unit

To Let
£7361 / month

Leicester, LE2 7SX

Industrial Unit

To Let
£1375 / month

Leicester, LE2 7SN

Industrial Unit

To Let
£1667 / month

Leicester, LE2 6BR

Industrial Unit

To Let
£5417 / month

Leicester, LE2 7SR

Industrial Unit

To Let
£3500 / month

Leicester, LE2 7SR

Industrial Unit

To Let
£4167 / month

Leicester, LE2 7SR

Industrial Unit

To Let
£6250 / month

Leicester, LE2 7SJ

Industrial Unit

To Let
POA

Wigston, LE18 3TE

Industrial Unit

To Let
£3750 / month

Wigston, LE18 1PS

Industrial Unit

To Let
£738 / month

Hinckley, LE10 3PA

Industrial Unit

To Buy
£1500000 Freehold

Wigston, LE18 3SE

Industrial Unit

To Let
£1000 / month

Wigston, LE18 3QD

Industrial Unit

To Let
£1875 / month

Leicester, LE2 7BF

Industrial Unit

To Let

Leicester, LE1 5TS

Industrial Unit

To Let
£500 / month

Leicester, LE9 8BE

Industrial Unit

To Let
£290 / month

Leicester, LE9 8BE

Industrial Unit

To Let
£250 / month

Leicester, LE9 8BE

Industrial Unit

To Let
£375 / month

Leicester, LE9 8BE

Industrial Unit

To Let
£500 / month

Leicester, LE9 8BE

Industrial Unit

To Buy
£600000 Freehold

Leicester, LE3 5BF

Industrial Unit

To Let
£3125 / month

Oadby, LE2 5LQ

Industrial Unit

To Let
POA

Leicester, LE2 5LQ

Industrial Unit

To Let
£3917 / month

Oadby, LE2 5LQ

Industrial Unit

To Let
£1333 / month

Leicester, LE2 5LT

Industrial Unit

To Let
£150 / month

Leicester, LE2 5LQ

Industrial Unit

To Let

Leicester, LE9 8GZ

Industrial Unit

To Let

Leicester, LE9 8GZ

Industrial Unit

To Let

Leicester, LE9 8GZ

Industrial Unit

To Let

Leicester, LE9 8GZ

Industrial Unit

To Let

Leicester, LE9 8GZ

Industrial Unit

To Let
£563 / month

Leicester, LE2 5LS

Industrial Unit

To Let
POA

Lutterworth, LE17 5NA

Industrial Unit

To Let
POA

Lutterworth, LE17 5NA

Industrial Unit

To Let
POA

Lutterworth, LE17 5NA

Industrial Unit

To Let
£895 / month

Leicester, LE2 1FJ

Industrial Unit

To Let
£3050 / month

Leicester, LE2 0JN

Industrial Unit

To Let
POA

Leicester, LE2 0JN

Industrial Unit

To Let
£1983 / month

Leicester, LE2 0JN

Industrial Unit

To Let
£1833 / month

Leicester, LE1 4DB

Industrial Unit

To Let
£3750 / month

Leicester, LE4 0AJ

Industrial Unit

To Let
£1154 / month

Leicester, LE1 3WL

Industrial Unit

To Let
£1667 / month

Leicester, LE1 3WL

Industrial Unit