Industrial Unit To Let Or For Sale Wrexham
PROPERTY ID: 143528
PROPERTY TYPE
Industrial Unit
STATUS
Available
SIZE
15,820-43,420 sq.ft
Key Features
Property Details
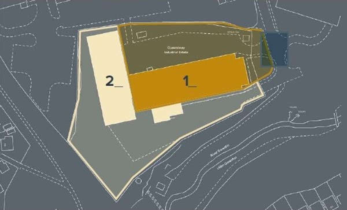
The Property Comprises A Detached Industrial / Warehouse Building On A Large Self Contained Site, Which Can Be Made Available As Two Separate Units Or As A Whole.
The Buildings Are Of Steel Frame Construction With Internal Blockwork And External Full Height Profiled Metal Cladding.
The Industrial / Warehouse Space Benefits From Good Height Clearance Under A Pitched Roof With Translucent Rooflights.
The Office Accommodation Benefits From A Flat Felt Roof.
The Property Is Served By Two Separate Large And Secure Service Yards, One To Each Side Of The Buildings. Both Service Yards Are Generally Concrete Surfaced To A Good Standard.
The Site Is Secured With Palisade Fencing And Gates.
Large Secure Service Yards.
Large Electric, Gas And Water Supplies Available.
Ground And First Floor Office / Amenity Space.
Town Centre Fringe.
35% Site Coverage.
Opportunity To Purchase.
Available As A Whole Unit Or As Two Separate Self-contained Units.












































.jpg)
.jpg)








.jpg)

.jpg)



























































