Office To Let, Windsor
POA
New Lodge, Windsor, SL4 4RR
Type
Office
Status
Let Agreed
Size
2,000 - 6,808 sq ft
Key Features
- Biomass Boiler System
- Excellent Data Connectivity
- High Grade Comms Room with Raised Floor and Air Conditioning Facilities
- Superior Fitted Kitchen and Catering Facilities Provided
Property Details
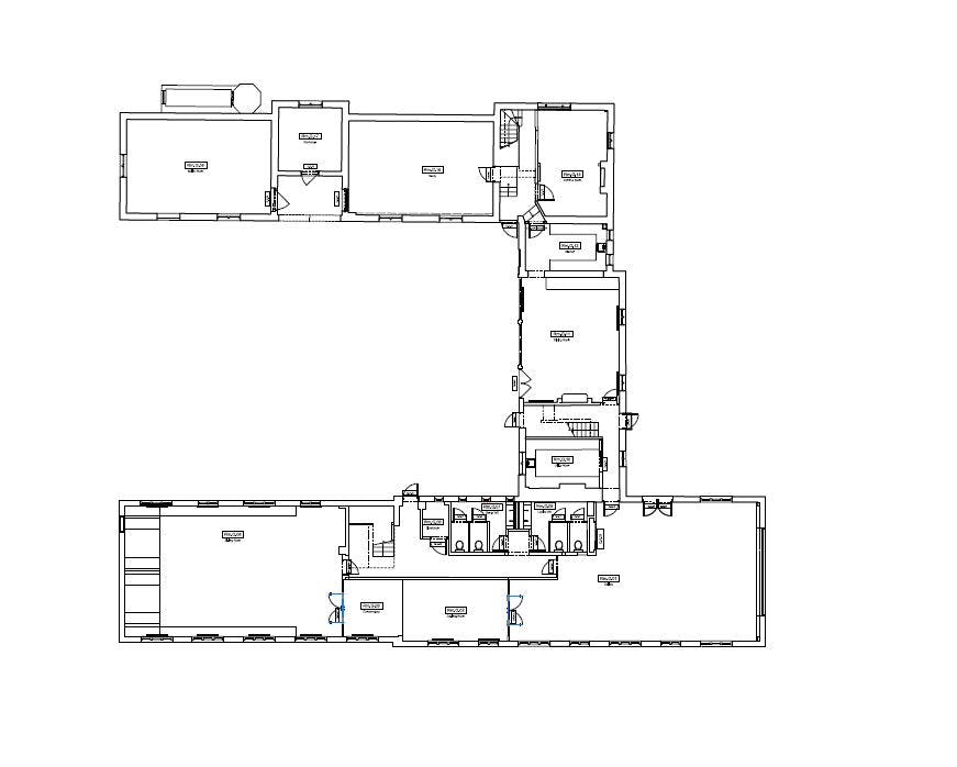
The Stables Is A Mix Single And Two Storey Brick-built Building Complex. The Building Has Undergone Comprehensive Conversion And Refurbishment To Offices. Externally The Building Presents Favourably, And It Is Evident There Has Been Extensive Modernisation Through, Whilst Maintaining The Unique Character Of The Property And The Estate.
The Building Benefits From A Generous Parking Provision, With Approximately 50 Parking Spaces, Adjacent To The East Side Of The Building.
Internally The Building Is Divided Into Approximately 7 Separate Office Rooms, With Two Additional Rooms Laid To Kitchens/ Employee Breakout Space. The Building Also Has A Dedicated Server Room With Air-conditioning. One Of The Office Rooms On The First Floor Has Been Converted To An Employee Gym, With Its Own Changing Facilities And Showers/wc. There Are Two Male And Female Wcs On The Ground Floor.
The Interior Fixtures And Furnishings Are Of A High Specification, The Result Of A Lavish Refurbishment By A Previous Occupier That Completed In 2017.
The Building’s Heating System Is Powered By A Biomass Boiler System, The Heating Is Delivered Via A Radiator System Throughout The Building.
The Building Benefits From A Generous Parking Provision, With Approximately 50 Parking Spaces, Adjacent To The East Side Of The Building.
Internally The Building Is Divided Into Approximately 7 Separate Office Rooms, With Two Additional Rooms Laid To Kitchens/ Employee Breakout Space. The Building Also Has A Dedicated Server Room With Air-conditioning. One Of The Office Rooms On The First Floor Has Been Converted To An Employee Gym, With Its Own Changing Facilities And Showers/wc. There Are Two Male And Female Wcs On The Ground Floor.
The Interior Fixtures And Furnishings Are Of A High Specification, The Result Of A Lavish Refurbishment By A Previous Occupier That Completed In 2017.
The Building’s Heating System Is Powered By A Biomass Boiler System, The Heating Is Delivered Via A Radiator System Throughout The Building.
Location
Vail Williams
View all properties
Make an Enquiry
Vail Williams