







Investment
Investment For Sale Milton Keynes
PROPERTY ID: 145668
PROPERTY TYPE
Investment
STATUS
Available
SIZE
1,435 sq.ft
Property Details
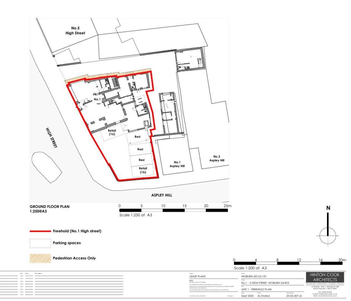
* Freehold Retail Investment For Sale. * High Street Location In Thriving Town Centre. * Three Individual Ground Floor Units. * Two Units Let On Full Repairing And Insuring Leases Expiring In 2035. * One Unit Vacant, With Letting Agreed. * Rental Income Of £43,200 Pa Exclusive. * Car Parking Area.
About the Agent
Louch Shacklock and Partners LLP
See Agent's Other PropertiesInvestment Unit
£600,000 Freehold
1 High Street, Milton Keynes, MK17 8RQ
Investment -
Available
1,435 sq ft
133 sqm
Show phone number