Office To Let, Wythenshawe
4 photos
£500 / month
£6,000 pa
Ledson Road, Wythenshawe, M23 9GP
Type
Office
Status
Available
Size
500 - 6,929 sq ft
Key Features
- Open Plan
- Fitted Kitchen
- Shower Facilities
- 25 Car Parking Spaces
Property Details
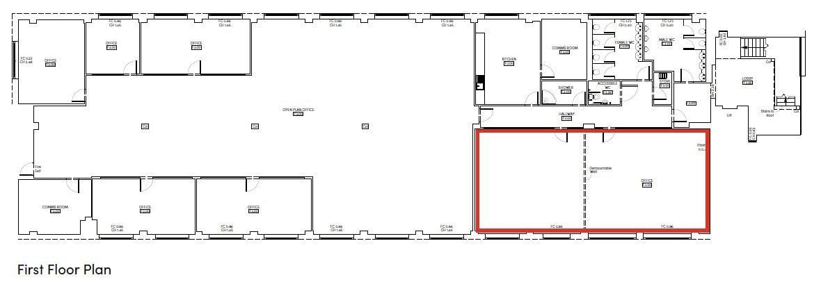
Modern Office Space That Offers Self-contained Ground Floor Entrance. The Open Plan Layout Fosters Collaboration And Flexibility, Whilst The Space Also Includes Private Offices With Glazed Portioning For Added Privacy. A Separate Boardroom With Glazed Portioning Is Available For Meetings.
The Office Benefits From Ceiling-mounted Light Fittings And Perimeter Trunking For Efficient Cable Management. The Office Has A Fully Fitted Kitchen Along With Wc And Shower Facilities. The Entire Site Is Under 24-hour Cctv Surveillance And Electric Gates For Added Security. The Office Is Fully Dda-compliant. The Property Also Includes 25 Parking Spaces.
The Accommodation Has Been Measured On A Net Internal Area Basis And Is Approx. 6,929 Sq Ft (643.73 Sq M) And Can Be Subdivided To Provide A Number Of Self-contained Fully Fitted Office Suites From 200 Sq Ft Upwards, Subject To The Final Agreed Specification.
The Office Benefits From Ceiling-mounted Light Fittings And Perimeter Trunking For Efficient Cable Management. The Office Has A Fully Fitted Kitchen Along With Wc And Shower Facilities. The Entire Site Is Under 24-hour Cctv Surveillance And Electric Gates For Added Security. The Office Is Fully Dda-compliant. The Property Also Includes 25 Parking Spaces.
The Accommodation Has Been Measured On A Net Internal Area Basis And Is Approx. 6,929 Sq Ft (643.73 Sq M) And Can Be Subdivided To Provide A Number Of Self-contained Fully Fitted Office Suites From 200 Sq Ft Upwards, Subject To The Final Agreed Specification.
Location
Fisher German LLP- Manchester
View all properties
Make an Enquiry
Fisher German LLP- Manchester