Retail/Shop To Let Ely
PROPERTY ID: 132213
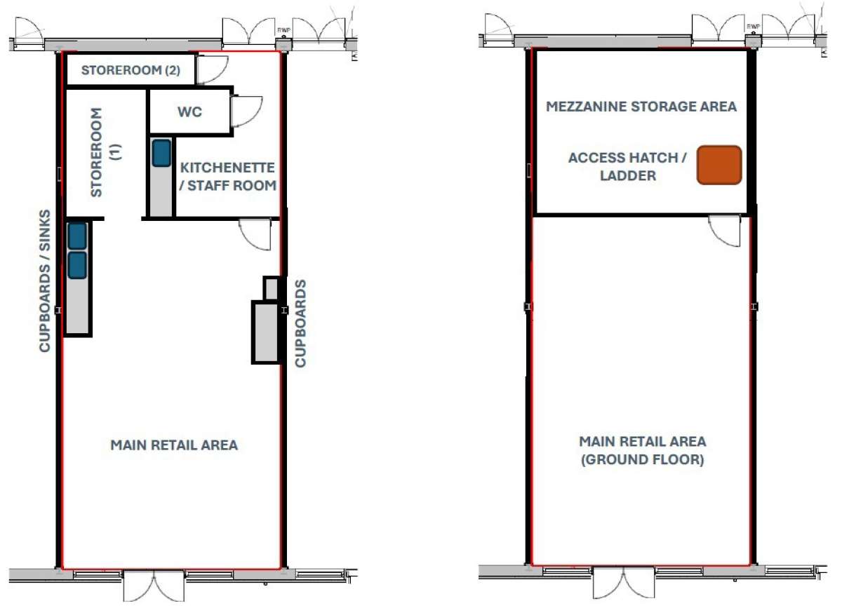
PROPERTY TYPE
Retail/Shop
STATUS
Available
SIZE
1,226-1,391 sq.ft
Key Features
Property Details
Ely is a picturesque and affluent Cathedral City. The city is a major tourism centre with typically over 800,000 tourists per year with a number of key attractions including Ely Cathedral, Oliver Cromwell's House and the Waterside Area around the River Great Ouse.
Ben's Yard is the perfect all-round destination for those living within a 45 minute drive time, with Cambridge only 30 minutes away and Newmarket, best known for its horse racing, a short 15 minute drive away.
An Independent Retail Village On The Beautifully Landscaped Stuntney Estate.
Ben's Yard Is Home To A Collection Of Independent Retailers Offering Food, Home Interiors, Fashion And Gifts.
Whether You Are Looking For A Relaxing Day Out, A New Favourite Café, A Leisurely Lunch, Or A Bespoke Shopping Experience, Our Unique Destination Combines The Best Of Boutique Shopping, Wellness And Food.
We Are Looking For Businesses That Complement The Existing Line Up At Ben's Yard. These Can Be From A Wide Range Of Sectors Including:
Ladies Fashion
Country Clothing / Products / Goods
Antique Shops
Art Galleries
Florist
Gym
Homeware
Lifestyle
Pet Shop / Dog Groomers
Wine / Beer / Spirits Merchants
Equestrian Businesses
Kitchen Retailers
Jewellers
Alternative Uses Such As Office, Professional Services, Gym, Dentist, Day Nursery, Soft Play (etc.) Will Be Considered On A Subject To Planning Basis. These Lists Are Not Exhaustive, And we Are Open To Considering A Variety Of Other Uses.
The Units Are 'move In Ready' And Available On Flexible Terms With Lease Lengths From 1 Month To 5 Years.
Ely Is A Picturesque And Affluent Cathedral City. The City Is A Major Tourism Centre With Typically Over 800,000 Tourists Per Year With A Number Of Key Attractions Including Ely Cathedral, Oliver Cromwell's House And The Waterside Area Around The River Great Ouse.
Ben's Yard Is The Perfect All-round Destination For Those Living Within A 45 Minute Drive Time, With Cambridge Only 30 Minutes Away And Newmarket, Best Known For Its Horse Racing, A Short 15 Minute Drive Away.
Available To Let For 1 Month To 5 Years
Move In Ready - Varying Levels Of Fitout
Well Maintained And In A Desirable Area
The Units Has An Epc Of A


































































































