







Retail/Shop
Retail/Shop To Let Leyton
PROPERTY ID: 129276
PROPERTY TYPE
Retail/Shop
STATUS
Available
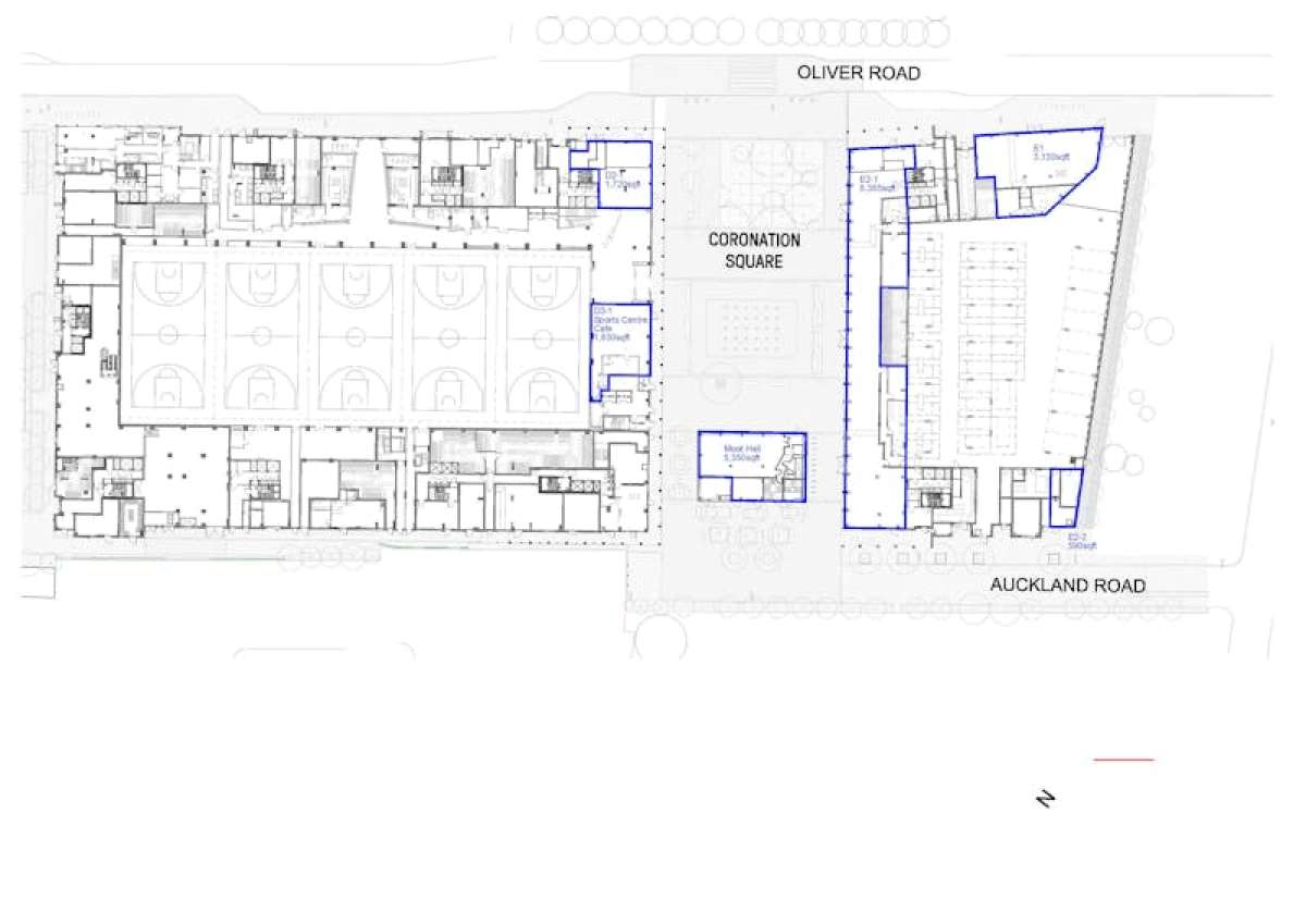
SIZE
590-17,877 sq.ft
Key Features
Substantial new mixed-use development
Neighbours Leyton Orient football club
New indoor sports centre and nursery
A total of 796 new homes
Property Details
Coronation Square Is The Commercial Hub Of A Substantial Development By Taylor Wimpey Comprising 750 New Residential Units, A Pre-school Nursery, Indoor Sports And Leisure Centre (planned To Open August 2024), Community Facilities, Attractive Public Square And 21,000sq Ft Of New Commercial Accommodation, Likely To Be Of Interest To A Range Of Retail And Leisure Users.
About the Agent
Strettons
See Agent's Other PropertiesRetail Unit
POA
116 Oliver Rd, Leyton, E10 5UJ
Retail/Shop -
Available
590-17,877 sq ft
55-1,661 sqm
Show phone number